Algemeen
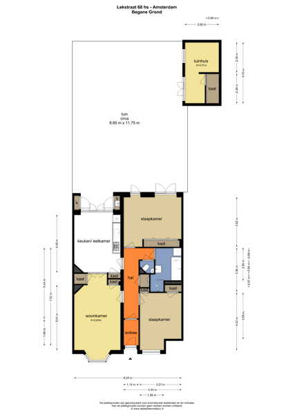
Woonoppervlakte
94 m2
Aantal kamers
4
Omschrijving
Kenmerken
Adres
Lekstraat 68
1079 ET Amsterdam
1079 ET Amsterdam
Prijs
Soort
Aangeboden sinds
9 Maart 2026
Details
Type object
appartement/flat
Soort object
woonobject
Bouwjaar
1932
Woonoppervlakte
94 m2
Inhoud
365 m3
Indeling
Aantal kamers
4
Tuin
Garage
Bergruimte
Energielabel
Aanwezig?
nee
Interesse? Maak een afspraak!
Maurits van Leeuwen
Plan zelf online een bezichtiging en vergroot uw kans op deze woning.





