In de geliefde Watergraafsmeer bieden wij dit comfortabele maisonnette appartement (103 m²) aan, verdeeld over de tweede en derde (bovenste) etage. De woning beschikt over twee slaapkamers, een ruime badkamer, een woningdiepe woonkamer met open keuken en gashaard, en een zonnig privé dakterras. Met energielabel B en ligging op eigen grond combineert dit appartement ruimte, comfort en zekerheid.
Indeling
Eigen entree aan straatzijde. Verzorgd en riant trappenhuis naar 2e etage.
Via de overloop/gang zijn alle ruimtes toegankelijk. De twee slaapkamers, beide geschikt als volwaardige slaap- of werkkamer, waarvan één met charmant balkon. De royale badkamer, uitgerust met een ligbad, separate douche en dubbele wastafel. De overloop herbergt bovendien een grote kast met o.a. wasmachine/droger opstelling
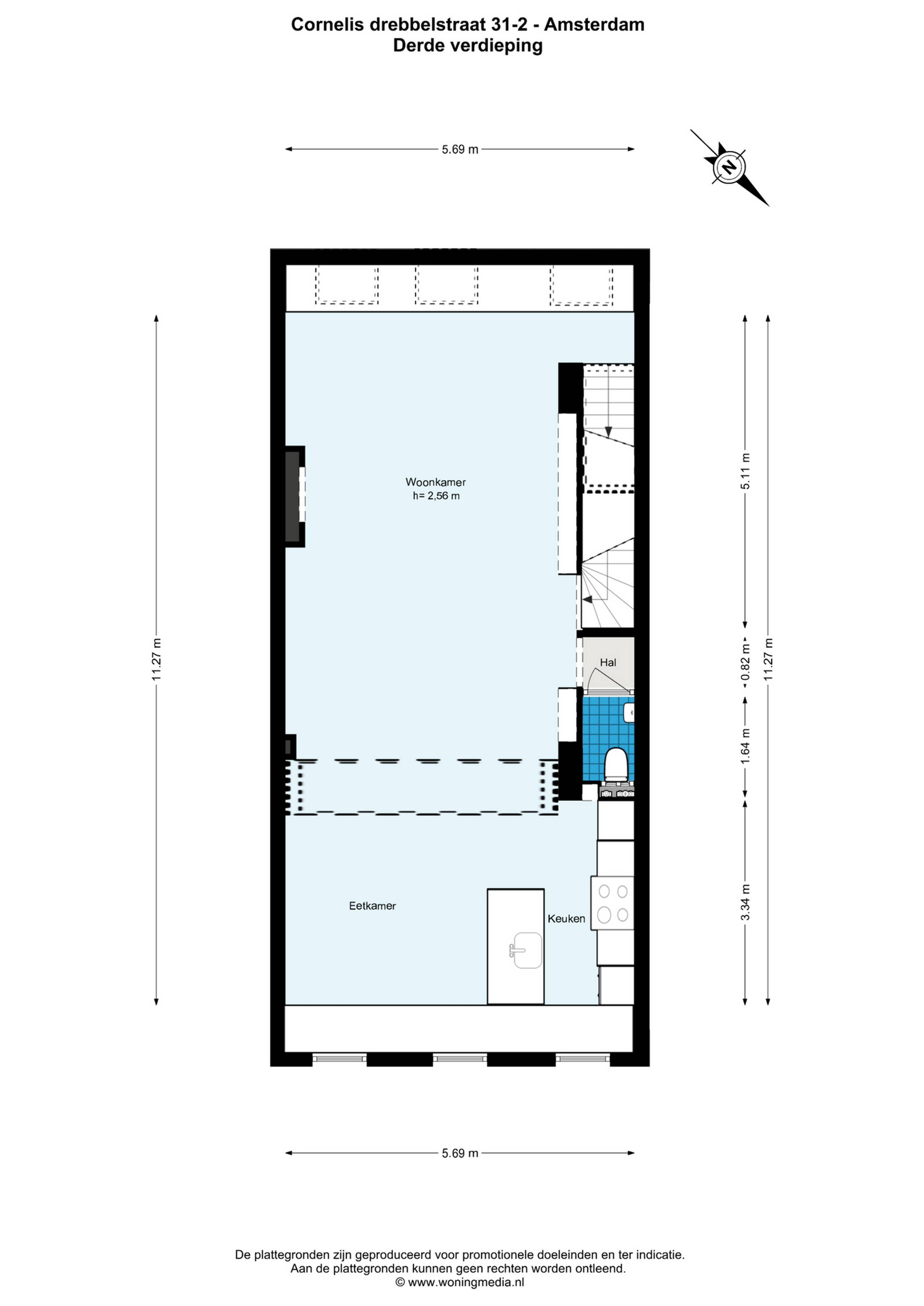
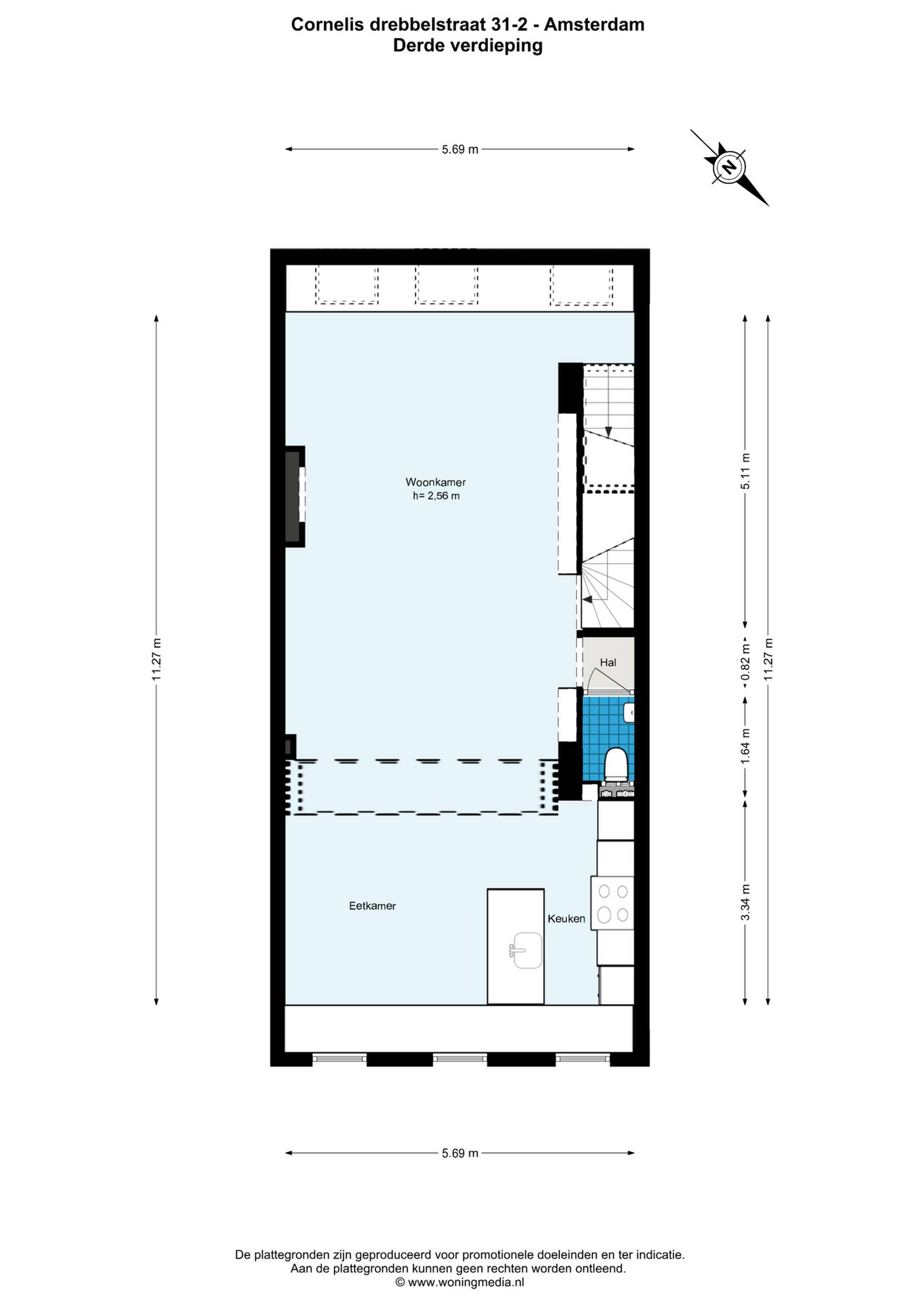
Via trap naar 3e etage.
De ruime woonkamer strekt zich uit over de volle diepte van de woning en heeft aan de voorzijde een sfeervolle zithoek met gashaard. Aan de achterzijde bevindt zich het eetgedeelte met open keuken, ideaal voor wie koken en samenzijn wil combineren. Dankzij de brede en hoge ramen geniet de living van veel lichtinval en een prettige sfeer. Verder nog een nette wc.
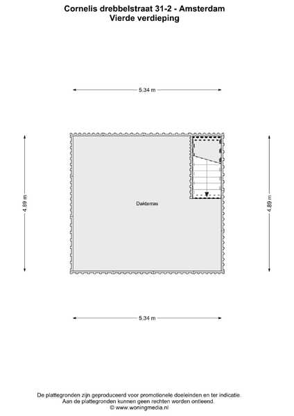
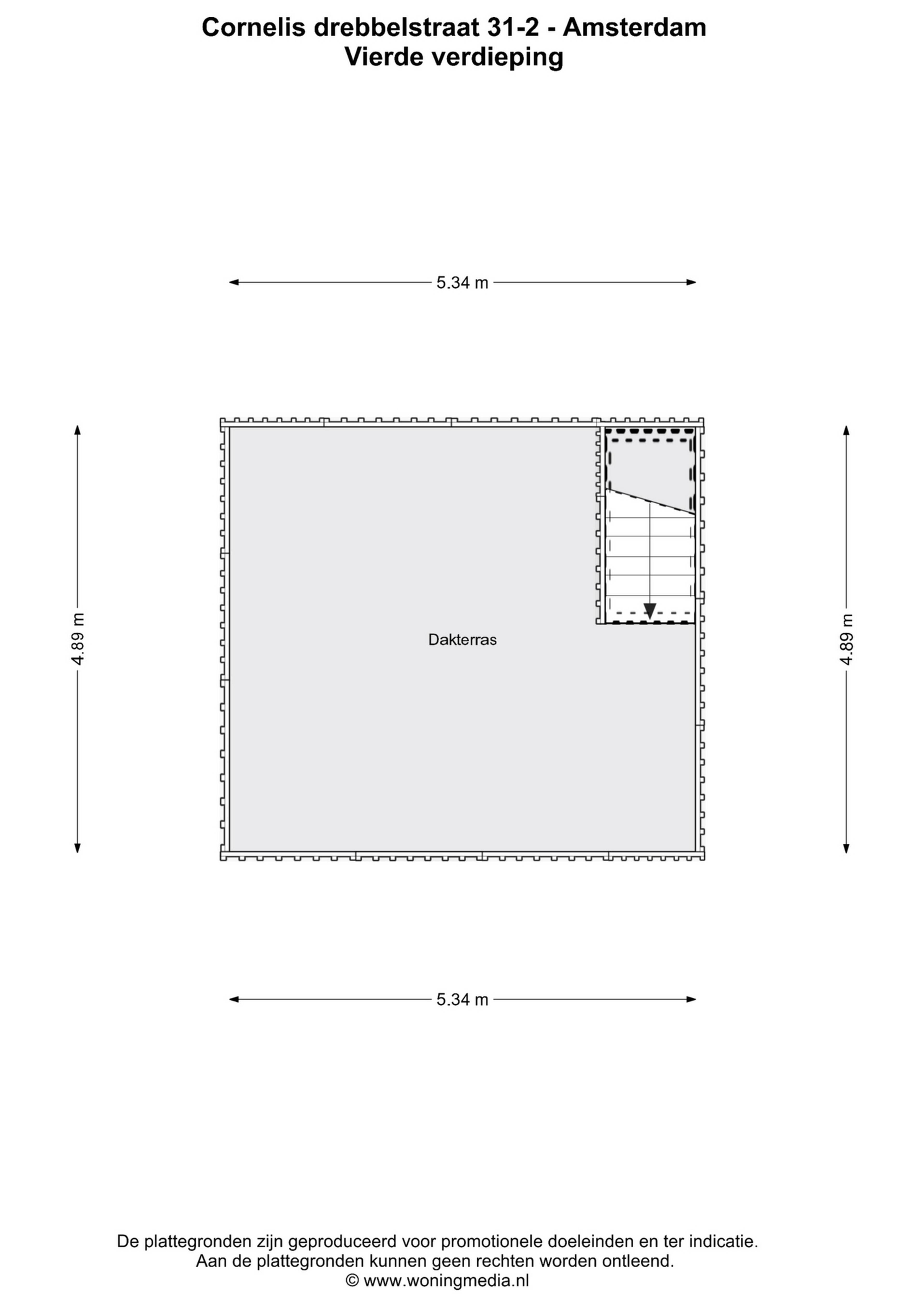
Toegang tot het privé dakterras: een rustige en zonnige buitenruimte met veel privacy.
Pluspunten:
103 m² woonoppervlak verdeeld over twee verdiepingen
Woningdiepe woonkamer met open keuken en gashaard
Twee ruime slaapkamers (één met charmant balkon)
Royale badkamer met ligbad, douche, wastafel en tweede wc
Privé dakterras van ca. 26m2 op de bovenste etage
Comfortabel en energiezuinig (energielabel B)
Eigen grond (geen erfpacht)
Recentelijk opgerichte VVE bestaande uit 2 leden (MJOP beschikbaar), administratie door de leden
Maandelijkse bijdrage VvE is € 120,-
In de koopakte zal een niet-zelfbewoningsclausule worden opgenomen
Omgeving
De Cornelis Drebbelstraat is een rustige, groene straat in de Watergraafsmeer. Een buurt die bekendstaat om haar prettige woonklimaat: ruim opgezet, kindvriendelijk en voorzien van veel groen. Park Frankendael, Flevopark en Oosterpark liggen op korte afstand en bieden volop mogelijkheden om te wandelen, sporten en ontspannen. In de nabije omgeving vind je gezellige horecazaken, buurtwinkels, (dag)scholen en sportfaciliteiten.
Met diverse openbaar vervoerslijnen en uitvalswegen in de buurt is de bereikbaarheid uitstekend. Het centrum van Amsterdam is binnen tien minuten fietsen bereikbaar, terwijl je hier toch de rust en ruimte van een woonwijk ervaart.
Uw vergunninggebied is Oost-5a. Een parkeervergunning voor bewoners kost € 192,81 per 6 maanden. Er is op dit moment geen wachtlijst voor uw vergunninggebied. Bewoners hebben ook de mogelijkheid om een (kosteloze) parkeervergunning voor bezoek aan te vragen. Uw bezoek betaalt dan tegen gereduceerd tarief.