Unieke kans: luxueus wonen op een van de mooiste locaties aan de Vinkeveense Plassen.
Deze volledig gerenoveerde hoekwoning combineert ruimte, comfort en een adembenemend uitzicht over het water—een droomplek voor wie op zoek is naar rust en kwaliteit. De eigen boot binnen handbereik, het is hier allemaal mogelijk.
Stel je voor: wakker worden met vrij zicht over de jachthaven, ontspannen in de tuin aan het water in de jacuzzi, zwemmen en afkoelen in het heldere water, barbecueën met vrienden of lange zomeravonden genieten aan het water tot de zon ondergaat. Ook in de winter is het hier ultiem genieten: een knisperende houtkachel en totale ontspanning in je eigen thuisresort. Dit is wonen op topniveau aan de bekendste straat van Vinkeveen.
Met twee parkeerplaatsen op afgesloten terrein en alle voorzieningen in de nabijheid, biedt deze woning het gemak van alledag. En wil je de stad in? Binnen twintig minuten sta je in Amsterdam Zuid. Ideaal als vaste woonlocatie, maar minstens zo perfect als hoogwaardige vakantiewoning.
De woning telt circa 125,3 m² woonoppervlakte en het vrije uitzicht over het omliggende water maakt het plaatje compleet. De woning heeft op de eerste verdieping het terras rondom, op zoek naar schaduw of juist zon, het is allemaal mogelijk.
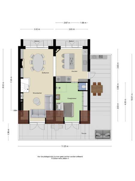
De speelse indeling biedt alle flexibiliteit: meerdere ruimtes zijn eenvoudig anders in te delen, zoals het creëren van extra slaapkamer of juist een extra werkkamer. Op de begane grond is een slaapkamer en werkkamer gecreëerd maar is eveneens in gebruik te nemen als twee ruime slaapkamers. Vanuit de ruime hal heeft u toegang tot de perfect afgewerkte wasruimte, een apart toilet en de luxe badkamer met inloopdouche en wastafelmeubel. De woonkamer/eetkamer is gelegen op de eerste verdieping met uitzicht over de Vinkeveense plassen en aangrenzend de luxe open keuken voorzien van diverse inbouwapparatuur. De slaapkamer op deze verdieping is voorzien van een eigen inloopdouche en toilet.
Kortom, een woning die je niet alleen ziet, maar vooral voelt.
Hier begint elke dag als een vakantie
Bijzonderheden:
Luxueus afgewerkte woning op prachtige locatie;
2/3 slaapkamers;
Bestemming recreatie waarbij de huidige eigenaren het permanent bewonen;
Energielabel B,
16 zonnepanelen en gasloos;
Huur parkeerplaats: 794,06 p.j. per parkeerplaats;
Kosten lidmaatschap bewonersvereniging € 60 per jaar, per woning.
A unique opportunity: luxurious living in one of the most beautiful locations on the Vinkeveen Lakes.
This fully renovated corner house combines space, comfort, and breathtaking waterfront views—a dream location for those seeking peace and tranquility. With your own boat within easy reach, it's all possible here.
Imagine waking up to unobstructed views of the marina, relaxing in the jacuzzi in the waterfront garden, swimming and cooling off in the crystal-clear water, barbecuing with friends, or enjoying long summer evenings by the water until the sun sets. Winter is also the perfect winter retreat: a crackling wood-burning stove and total relaxation in your own home retreat. This is top-notch living on Vinkeveen's most famous street.
With two parking spaces on a gated property and all amenities nearby, this house offers the convenience of everyday life. And if you want to venture into the city, Amsterdam Zuid is just twenty minutes away. Ideal as a permanent residence, but equally perfect as a high-quality holiday home. The house offers approximately 125.3 m² of living space, and the unobstructed view of the surrounding water completes the picture. The house features a wraparound terrace on the first floor, offering shade or sunshine—anything is possible.
The playful layout offers complete flexibility: several rooms can easily be reconfigured, such as creating an additional bedroom or an additional office. A bedroom and office have been created on the ground floor, but these can also be used as two spacious bedrooms. From the spacious hallway, you have access to the perfectly finished laundry room, a separate toilet, and the luxurious bathroom with a walk-in shower and vanity. The living/dining room is located on the first floor, overlooking the Vinkeveense Plassen lakes. Adjacent is the luxurious open-plan kitchen, equipped with various built-in appliances. The bedroom on this floor has its own walk-in shower and toilet.
In short, a house you not only see but also feel.
Here, every day starts like a holiday.
Details:
Luxuriously finished house in a beautiful location;
2/3 bedrooms; Recreational use with permanent residence by the current owners;
Provisional energy label B,
16 solar panels and gas-free;
Parking space rental: €794.06 per year per space;
Residents' association membership fee: €60 per year.