TEN KATESTRAAT 53-2
**English translation below
Ten Katestraat 53-2 is zo’n adres waar je meteen snapt waarom mensen hier graag wonen. Een zeer licht appartement, praktisch ingedeeld, op loopafstand van alles wat Amsterdam-West leuk maakt. Perfect als je starter bent of als je simpelweg graag woont met voorzieningen, horeca en cultuur om de hoek.
HIGHLIGHTS
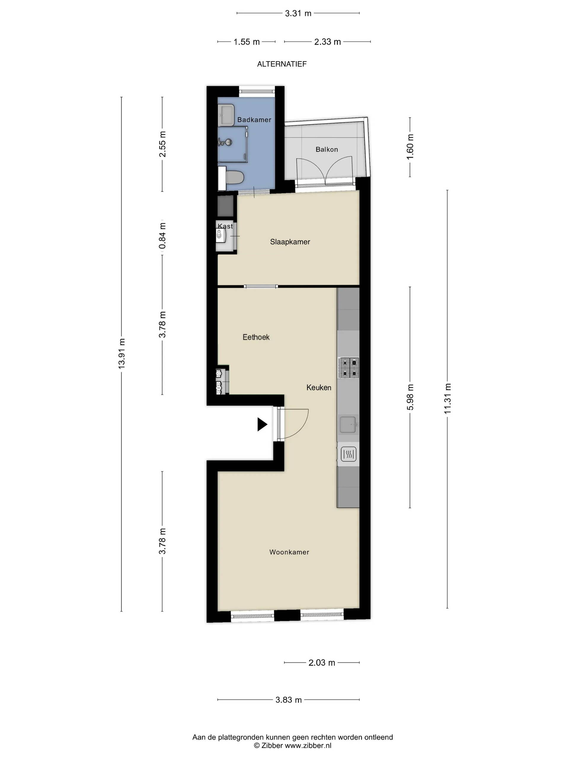
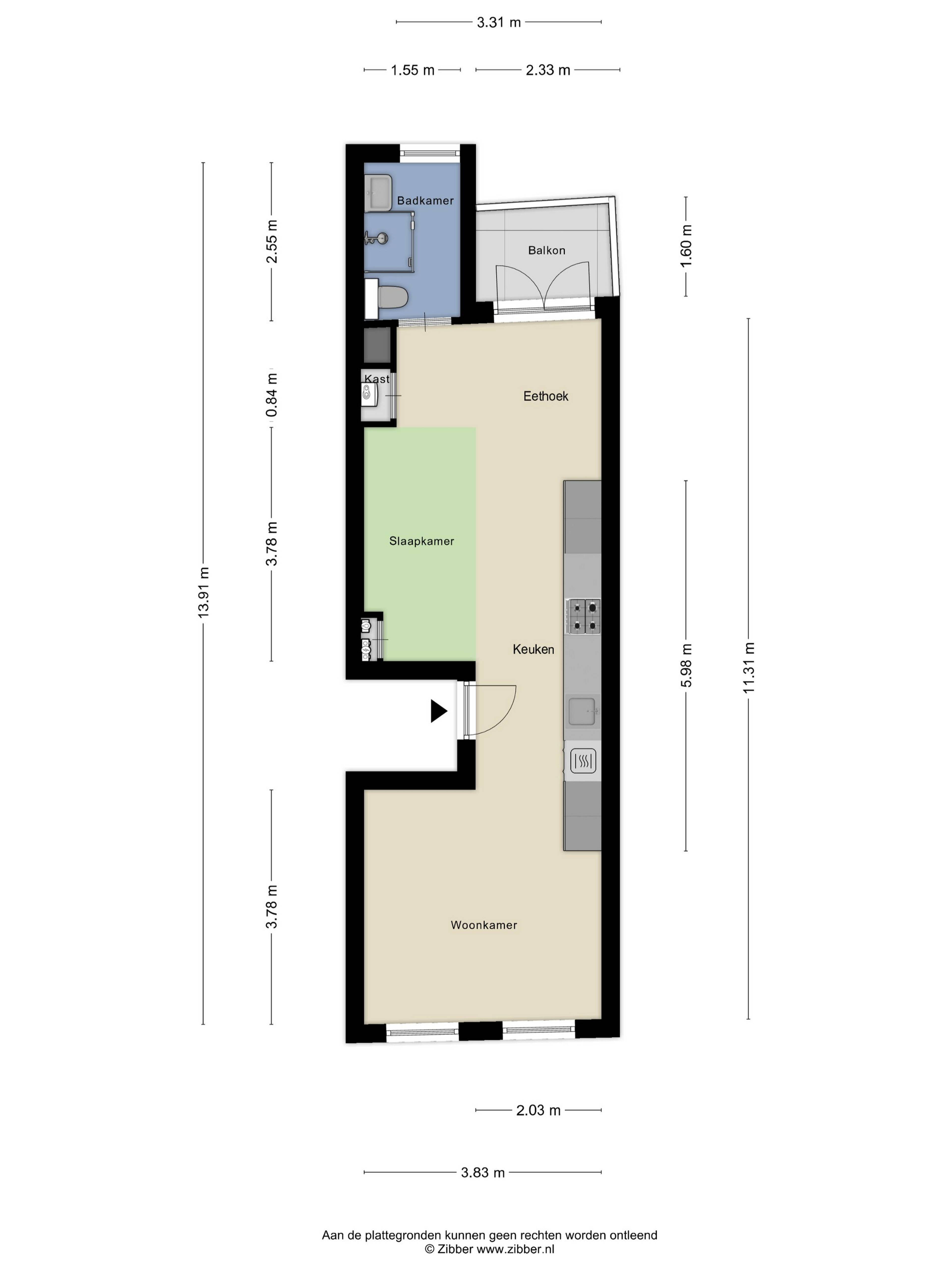
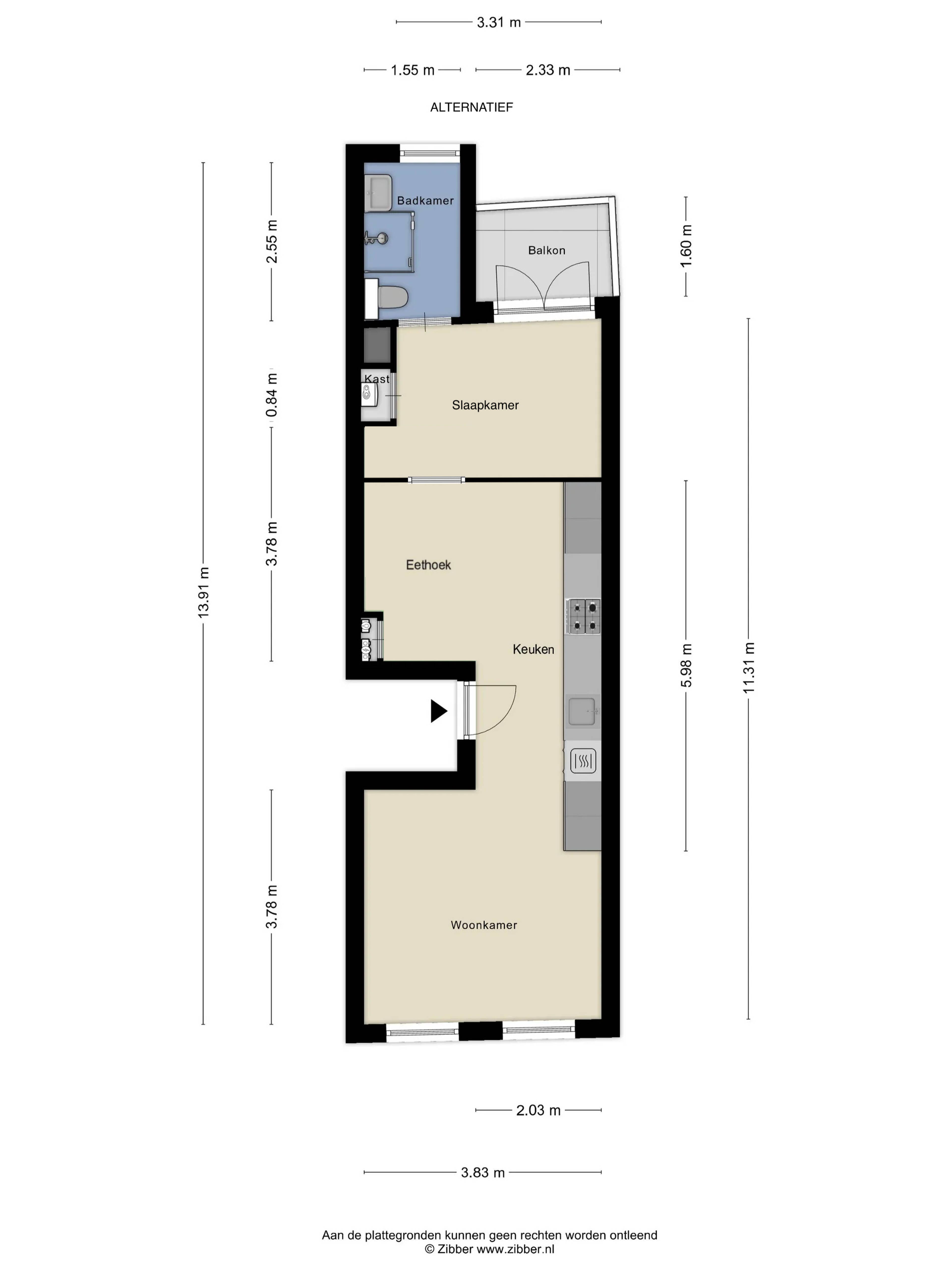
•Ca. 44 m² woonoppervlak
•2015: gebouw volledig vernieuwbouwd
•Fundering 2015
•Energielabel A
•Actieve en professionele VvE (€ 166,35 p/m)
•Erfpacht is afgekocht tot 2065
•Balkon aanwezig
•Je kan eenvoudig een muurtje plaatsen voor meer privacy of een duidelijkere indeling
OMSCHRIJVING
De woning voelt direct prettig: veel daglicht, een fijne sfeer en een indeling die logisch is. De woonkamer biedt ruimte voor een comfortabele zithoek. De keuken sluit hier goed op aan, waardoor het geheel praktisch en gezellig aanvoelt.
De achterzijde van het appartement wordt gebruikt als slaap en eetgedeelte. Met en eenvoudige ingreep zou je hier ook een afgesloten slaapkamer kunnen creëren. En met het balkon heb je bovendien een fijne buitenplek voor een frisse neus of een momentje zon.
Ook de basis is sterk: het pand is in 2015 volledig vernieuwbouwd en voorzien van een nieuwe fundering. In combinatie met energielabel A woon je hier comfortabel en toekomstgericht. De VvE is professioneel beheerd.
OMGEVING
Je woont hier in een straat met een markt met verswaren waar je bijna dagelijks terecht kunt. Daarnaast vind je in de buurt twee bioscopen, diverse restaurants, de Foodhallen en volop uitgaansgelegenheden. Ideaal als je graag lopend de stad in gaat en zonder gedoe weer thuis bent.
DISCLAIMER
Hoewel deze advertentie met de grootst mogelijke zorg is opgesteld, kunnen er geen rechten aan de inhoud worden ontleend. Oppervlakten, indeling, voorzieningen, reistijden en overige informatie zijn indicatief en kunnen afwijken van de werkelijkheid. Geïnteresseerden wordt aangeraden alle gegevens zelf te controleren en zo nodig nader onderzoek te doen. Verkoper en makelaar aanvaarden geen aansprakelijkheid voor eventuele onjuistheden, onvolledigheden of interpretatieverschillen.
TEN KATESTRAAT 53-2
Ten Katestraat 53-2 is one of those addresses where you instantly understand why people love living here. A very bright apartment, practically laid out, within walking distance of everything that makes Amsterdam-West so appealing. Ideal if you’re a first-time buyer, or if you simply enjoy living close to amenities, great cafés and restaurants, and culture just around the corner.
HIGHLIGHTS
•Approx. 44 m² of living space
•2015: building fully renovated/redeveloped
•Foundation renewed in 2015
•Energy label A
•Professionally managed Owners’ Association (VvE) (€ 166,35 per month)
•Land lease has been payed of until 2065
•Balcony
•Easy option to add a wall for more privacy / create a bedroom
DESCRIPTION
The apartment feels immediately welcoming: plenty of natural light, a pleasant atmosphere, and a layout that simply makes sense. The living room offers enough space for a comfortable seating area. The kitchen connects nicely to the living space, making the overall feel both practical and cosy.
The rear side of the apartment is currently used as the sleeping and dining area. With a simple adjustment, you could also create a separate enclosed bedroom here. The balcony provides a lovely outdoor spot, perfect for some fresh air or a moment in the sun.
The fundamentals are strong as well: the building was fully renovated in 2015 and fitted with a new foundation. Combined with energy label A, this means comfortable, future-proof living. The Owners’ Association is professionally managed.
LOCATION
You’ll be living on a street with a fresh produce market where you can easily shop almost daily. Nearby you’ll also find two cinemas, a wide variety of restaurants, the
Foodhallen, and plenty of nightlife options. Perfect if you like heading into the city on foot, and coming home just as easily.
DISCLAIMER
Although this listing has been compiled with the greatest possible care, no rights can be derived from its contents. All information regarding floor areas, layout, features, travel times and other details is indicative and may differ from reality. Interested parties are advised to verify all information independently and, where necessary, conduct further investigations. The seller and the estate agent accept no liability for any inaccuracies, omissions or differences in interpretation.