Bezichtigingen direct in te plannen via de website van De Makelaars van Amsterdam
English text below
INSTAPKLAAR EN RUIM 5-KAMERAPPARTEMENT IN BUITENVELDERT
Omgeving
Dit prachtige en recent volledig gerenoveerde appartement ligt in de geliefde, groene en
kindvriendelijke wijk Buitenveldert, vlak bij de Zuidas, het World Trade Center en de Vrije
Universiteit. De omgeving staat bekend om haar rustige karakter, de ruime opzet en het vele
groen, met het Amstelpark en het Amsterdamse Bos letterlijk om de hoek.
Voor dagelijkse voorzieningen kunt u terecht bij het winkelcentrum Gelderlandplein en de
winkels aan de Buitenveldertselaan, met diverse supermarkten en speciaalzaken. De
bereikbaarheid is uitstekend: binnen enkele minuten bent u met de auto op de A10, en ook het
openbaar vervoer (trein, tram, bus en de Noord/Zuidlijn) bevinden zich op korte loopafstand.
Er is voldoende parkeergelegenheid voor de deur.
Indeling
Het appartement van circa 113 m² is gelegen aan de Zeelandstraat 40, op de derde verdieping,
en is bereikbaar via een breed trappenhuis. Bij binnenkomst treft u een ruime hal met
garderoberuimte en toegang tot alle vertrekken.
De woonkamer en eetkamer vormen samen een lichte doorzonruimte met grote raampartijen
aan beide zijden, waardoor er veel natuurlijk licht binnenvalt. Vanuit de woonkamer heeft u
direct toegang tot het zonnige balkon op het zuiden, met uitzicht op een goed onderhouden
speelparkje en groene omgeving. Ideaal om van de middag- en avondzon te genieten.
De moderne keuken is strak afgewerkt met een zwart marmeren werkblad en voorzien van A-
merk apparatuur. De keuken beschikt over een inductiekookplaat, Quooker en combi-oven en
koel-vriescombinatie. Om de hoek is er een aparte ruimte voor de wasmachine en droger.
In dit appartement bevindt zich tevens een waterontharder.
De badkamer is stijlvol gerenoveerd met marmerlook wand- en vloertegels en voorzien van
een luxe inloop-regendouche, een natuurstenen wastafel met bijpassend meubel, inbouwnis
en een ventilator met timer. Het toilet bevindt zich in de badkamer en is in dezelfde moderne
stijl afgewerkt.
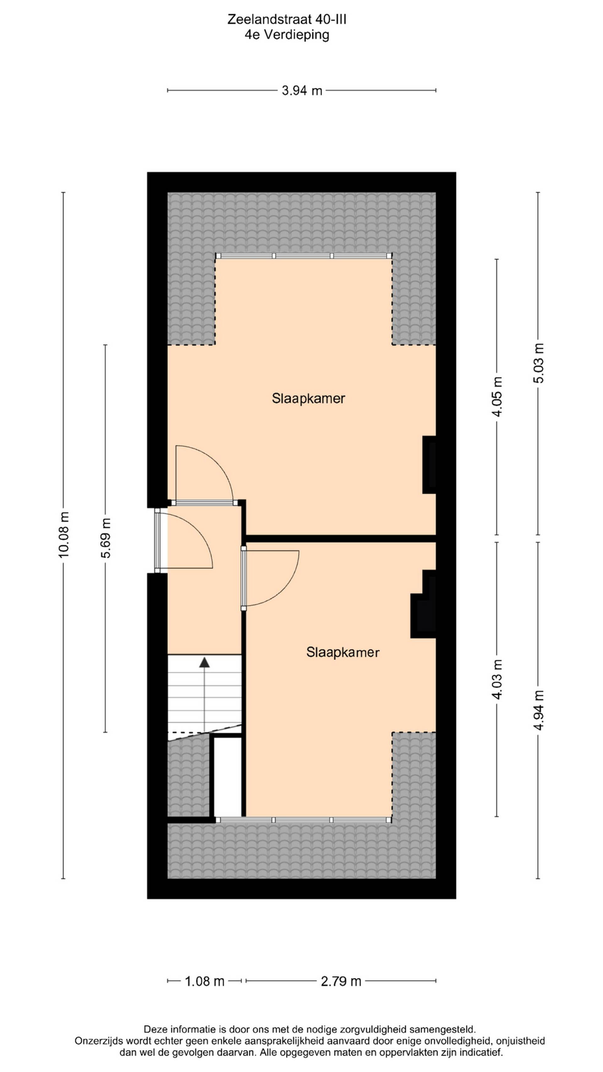
Op de eerste woonlaag bevinden zich twee ruime slaapkamers, beide met directe toegang tot
het balkon. Via de woonkamer is er een trap naar de tweede verdieping van het appartement,
waar zich nog twee extra slaapkamers bevinden.
Op de begane grond van het gebouw bevindt zich een ruime berging.
Bijzonderheden
• Woonoppervlakte ca. 113 m²
• Vier slaapkamers
• Recent compleet gerenoveerd (keuken, badkamer, toilet, vloeren)
• Licht en ruim 5-kamerappartement met doorzonwoonkamer
• Ruim balkon op het zuiden met fraai uitzicht
• Grote berging op de begane grond en extra zolderruimte
• Energielabel D
• Actieve en betrokken VvE, maandelijkse bijdrage € 303,14
• Erfpachtcanon afgekocht tot augustus 2051
• Zeer gewilde locatie nabij Zuidas, WTC, Amstelpark en Amsterdamse Bos
• Oplevering in overleg, kan op korte termijn
Deze woning wordt aangeboden conform artikel 7:17 lid 6 van het Burgerlijk Wetboek.
De opgegeven kenmerken en informatie zijn met de nodige zorgvuldigheid
samengesteld. Er wordt echter geen aansprakelijkheid aanvaard voor eventuele
onvolledigheden, onjuistheden of de gevolgen daarvan. Alle opgegeven maten en
oppervlakten zijn indicatief. De genoemde kenmerken dienen uitsluitend ter aanduiding.
De NEN2580-clausule en ouderdomsclausule zijn van toepassing op deze woning.
Viewings can be scheduled directly via the website of De Makelaars van Amsterdam.
MOVE-IN READY AND SPACIOUS 5-ROOM APARTMENT IN BUITENVELDERT
Surroundings
This beautiful and recently fully renovated apartment is located in the popular, green, and
family-friendly neighborhood of Buitenveldert, close to the Zuidas business district, the
World Trade Center, and the Vrije Universiteit. The area is known for its peaceful
atmosphere, spacious layout, and abundant greenery, with both Amstelpark and the
Amsterdamse Bos just around the corner.
For daily shopping, you can visit the Gelderlandplein shopping center and the stores along
Buitenveldertselaan, which offer various supermarkets and specialty shops. Accessibility is
excellent: within minutes you can reach the A10 ring road by car, and public transportation
(train, tram, bus, and the North/South metro line) are all within a short walking distance.
There is ample parking available right in front of the building.
Layout
The apartment, approximately 113 m² in size, is located at Zeelandstraat 40 on the third floor
and is accessible via a wide staircase. Upon entering, you’ll find a spacious hallway with
space for a coat rack and access to all rooms.
The living and dining room together form a bright through-living space with large windows
on both sides, allowing plenty of natural light to enter. From the living room, there is direct
access to the sunny, south-facing balcony, overlooking a well-maintained playground and
green surroundings. Perfect for enjoying the afternoon and evening sun.
The modern kitchen is sleekly finished with a black marble countertop and equipped with
high-quality appliances. It features an induction cooktop, a combination oven, Quooker and a fridge-
freezer. Just around the corner, there is a separate room for a washing machine and dryer.
This apartment is also equipped with a water softener.
The bathroom has been stylishly renovated with marble-look wall and floor tiles and includes
a luxurious walk-in rain shower, a natural stone washbasin with matching vanity unit, a built-
in niche, and a fan with a timer. The toilet is located within the bathroom and finished in the
same modern style.
On the first level of the apartment, there are two spacious bedrooms, both with direct access
to the balcony. From the living room, a staircase leads to the second level, where two
additional bedrooms can be found.
There is a large private storage room on the ground floor of the building.
Key features
• Living area approx. 113 m²
• Four bedrooms
• Recently fully renovated (kitchen, bathroom, toilet, flooring)
• Bright and spacious 5-room apartment with through-living room layout
• Generous south-facing balcony with pleasant views
• Large storage room on the ground floor and additional attic space
• Energy label D
• Active and involved Homeowners' Association (VvE), monthly service charges € 303.14
• Ground lease paid off until August 2051
• Highly sought-after location near Zuidas, WTC, Amstelpark, and Amsterdamse Bos
• Transfer in consultation, possible on short notice
This property is offered in accordance with Article 7:17 paragraph 6 of the Dutch Civil
Code. The stated features and information have been compiled with the utmost care.
However, no liability is accepted for any inaccuracies, incompleteness or consequences
thereof. All stated dimensions and surfaces are indicative. The listed features are
intended as a general description only. The NEN2580 clause and an Age Clause apply
to this property.