Ruimte, licht en uitzicht. Dit indrukwekkende herenhuis combineert strak design met optimaal wooncomfort en ligt direct aan het IJ-meer.
Met vier woonlagen, royale buitenruimtes, vijf slaapkamers, een eigen parkeergarage en een zonnige tuin op het zuidwesten biedt deze woning een unieke woonbeleving.
De woning ligt in een rustige straat, maar op slechts enkele minuten van het bruisende stadsleven. IJburg staat bekend om de ruime opzet, de uitstekende voorzieningen en de snelle verbinding met de stad. De tram brengt u in 10 minuten naar Amsterdam Centraal en met de auto zit u binnen 5 minuten op de A1 en A10. Op loopafstand vindt u cafés, sportclubs, scholen, strand en park.
Wat dit huis echt bijzonder maakt, is de fijne buurt en het buitenleven. De huidige bewoners vertellen hoe de straat voelt als een klein dorp binnen de stad, met goede scholen, veel groen en speelruimte voor kinderen. De zonnige tuin en het ruime plein aan de voorzijde zijn plekken waar buren samenkomen, kinderen veilig spelen en waar u op zomeravonden geniet van een drankje in de zon. Aan de achterzijde is ruimte voor fietsen en directe toegang tot een gezamenlijke binnentuin.
Weekendmomenten op de eerste verdieping, met uitzicht op het IJ-meer, geven het huis een unieke rust. De combinatie van licht, buitenruimte en het water voor de deur maakt dit een zeldzaam compleet woonhuis in Amsterdam.
Indeling
Begane grond: Entree via het plein. Aan de voorzijde bevindt zich een multifunctionele kamer, ideaal als werkruimte of speelkamer. Aan de achterzijde ligt de royale woonkeuken met vide en grote glaspartijen, waardoor er veel licht en ruimte ontstaat. Directe toegang tot de zonnige tuin op het zuidwesten.
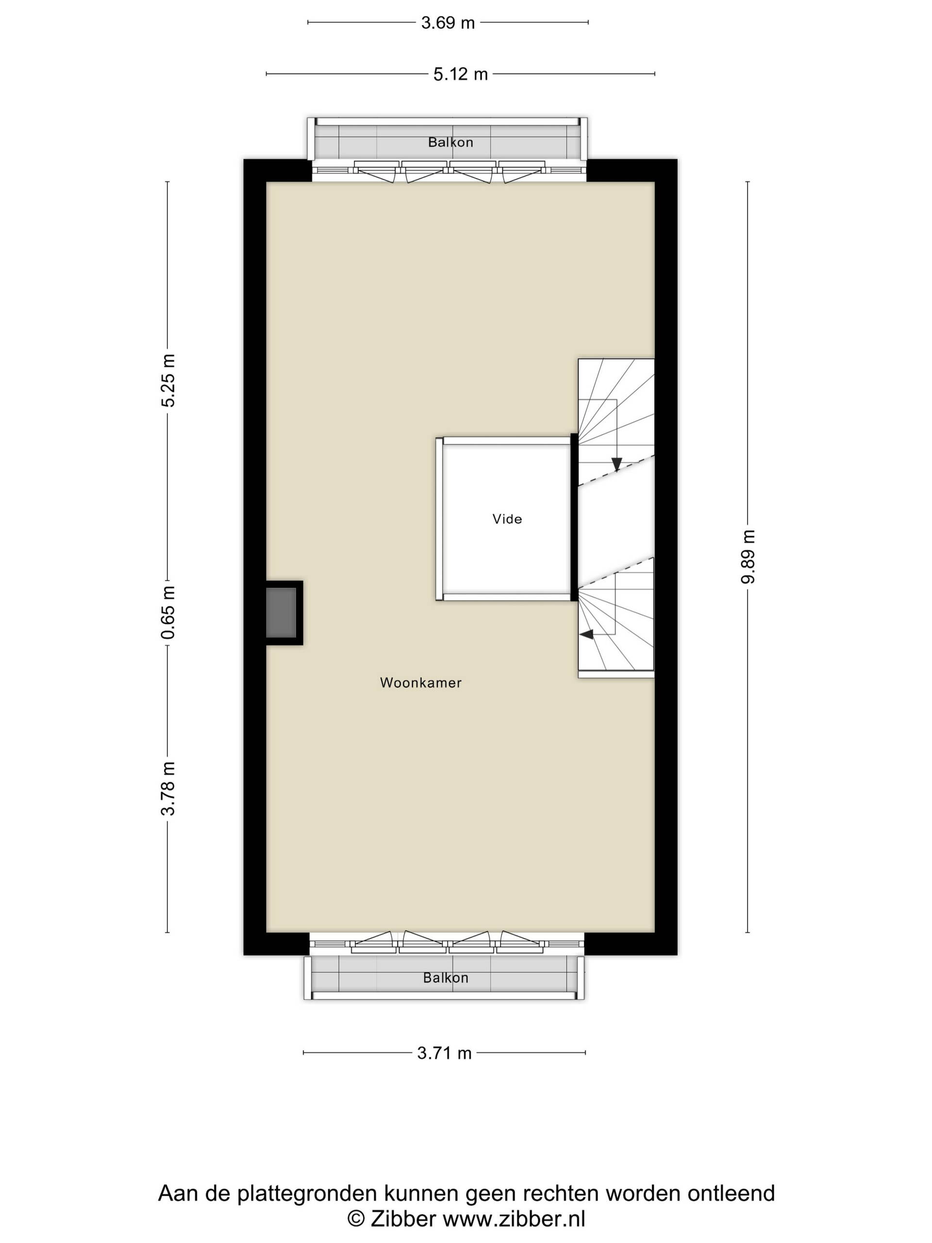
Eerste verdieping:
Riante living met grote raampartijen aan twee zijden en panoramisch uitzicht over het IJ-meer. Een lichte, open leefruimte die uitnodigt om samen te komen.
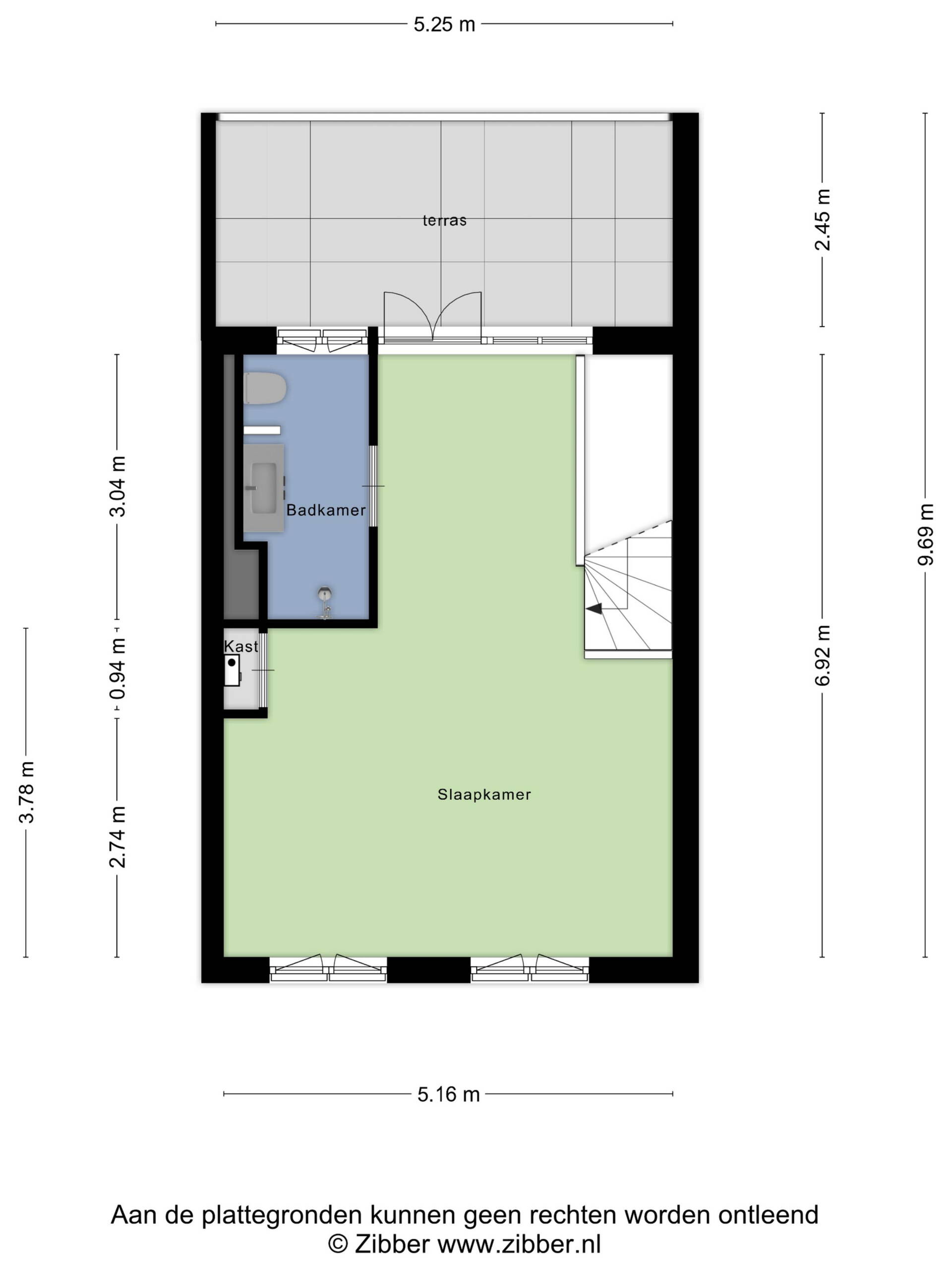
Tweede verdieping:
Vier slaapkamers en een complete badkamer met bad, douche, wastafel en toilet.
Derde verdieping:
Masterfloor met badkamer en toegang tot het dakterras — een rustige, lichte verdieping die veel privacy biedt.
Souterrain: Eigen parkeergarage en berging, binnendoor bereikbaar.
Bijzonderheden
-Woonoppervlakte ca. 184 m²
-Vier woonlagen en drie buitenruimtes
-Vrij uitzicht over het IJ-meer
-Zonnige tuin op het zuidwesten
-Eigen parkeergarage direct onder de woning
-Vijf slaapkamers en twee badkamers
-Energiezuinig (label A) met 10 zonnepanelen
-Erfpacht afgekocht tot 2054
-Rustige ligging met uitstekende bereikbaarheid
Alle informatie is met zorg samengesteld om een zo goed mogelijk beeld van de woning te geven. Aan de inhoud kunnen geen rechten worden ontleend.
Space, light and views. This impressive townhouse combines sleek design with maximum comfort and is located directly along the IJ Lake. With four floors, generous outdoor spaces, five bedrooms, a private parking garage and a sunny southwest-facing garden, this home offers a unique living experience.
The property is located in a quiet street, yet just minutes from the vibrant city. IJburg is known for its spacious layout, excellent facilities and great accessibility. Tram 26 takes you to Amsterdam Central Station in 10 minutes, and the A1 and A10 motorways are just 5 minutes away. Cafés, sports clubs, schools, the beach and Diemerpark are all within walking distance.
What truly sets this home apart is the community feel and the outdoor lifestyle. The current owners describe how the neighbourhood feels like a small village within the city, with good schools, green surroundings and plenty of space for children to play. The sunny garden and the spacious front courtyard are natural gathering places where neighbours meet, children play safely and summer evenings are enjoyed with a drink in the sun. At the back, there is room for bikes and access to a large, gated communal garden.
Peaceful weekend mornings with a view over the IJ Lake give this home a calm, unique atmosphere. The combination of space, light and location creates a rare find in Amsterdam.
Layout
Ground floor: Entrance via the front courtyard. A versatile room at the front is ideal as a home office or playroom. At the back, a spacious kitchen with double-height ceiling and large glass panels provides plenty of light and space. Direct access to the sunny southwest-facing garden.
First floor:
Spacious living room with large windows on two sides and panoramic views over the IJ Lake. Bright and open, it’s a perfect space to unwind or entertain.
Second floor:
Four bedrooms and a complete bathroom with bath, shower, washbasin and toilet.
Third floor:
Master floor with bathroom and access to the roof terrace — a quiet, private retreat with lots of natural light.
Basement:
Private garage and storage, accessible from inside.
Key features
-Living area approx. 184 m²
-Four floors and three outdoor spaces
-Unobstructed view of the IJ Lake
-Sunny southwest-facing garden
-Private indoor garage
-Five bedrooms and two bathrooms
-Energy-efficient (label A) with 10 solar panels
-Leasehold bought off until 2054
-Quiet location with excellent accessibility
All information has been compiled with care to provide the best possible impression of the property. No rights can be derived from this information.