Bezichtigingen direct in te plannen via de website van De Makelaars van Amsterdam
English text below
Joan Melchior Kemperstraat 117H, Amsterdam
Sfeervolle benedenwoning met tuin in de geliefde Staatsliedenbuurt
Welkom bij Joan Melchior Kemperstraat 117H. Een lichte en goed ingedeelde benedenwoning van circa 45 m², met een fijne achtertuin op het zuiden. Het hebben van een tuin biedt volop mogelijkheden tot uitbouw. De woning maakt deel uit van een actieve en gezonde VvE.
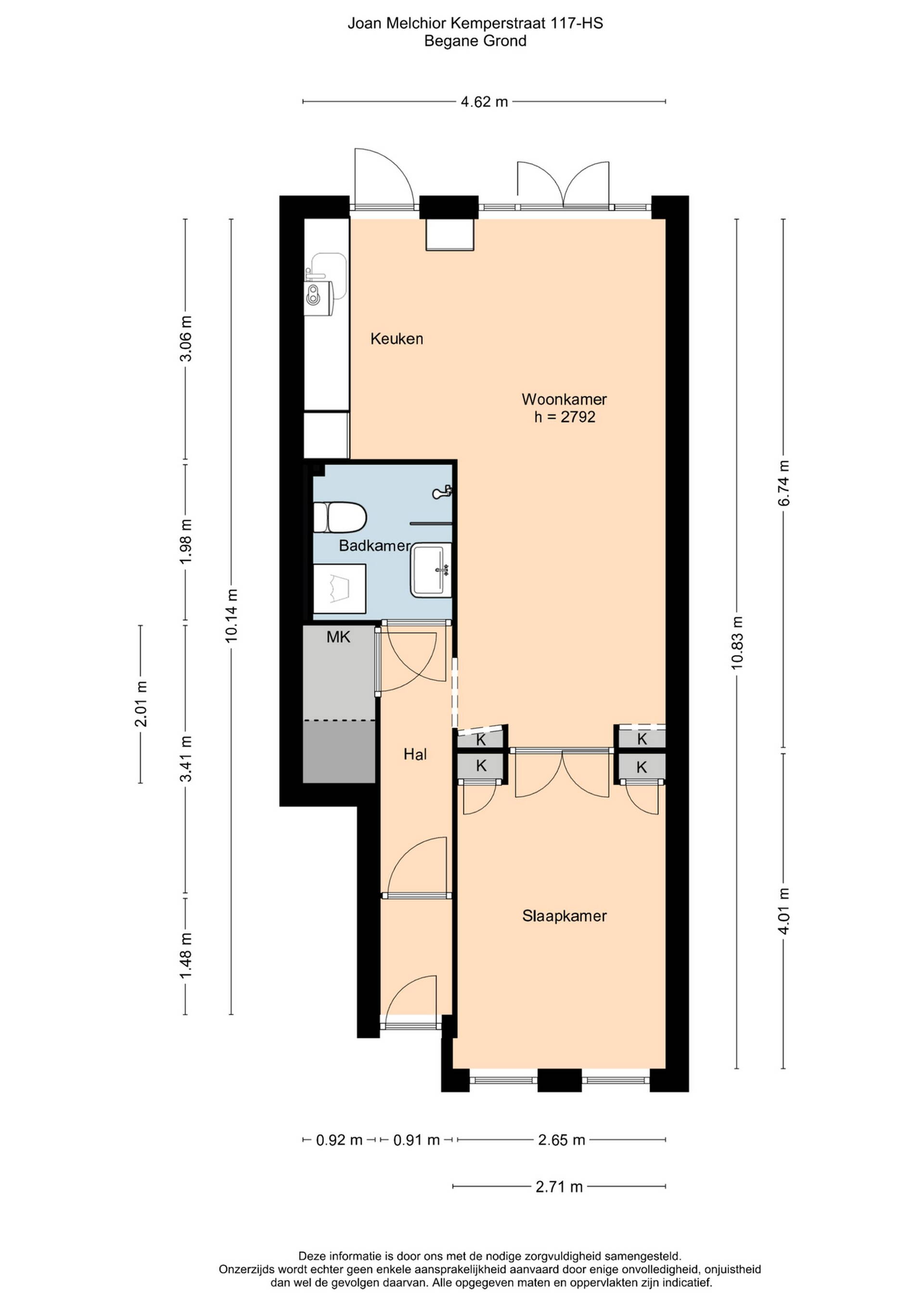
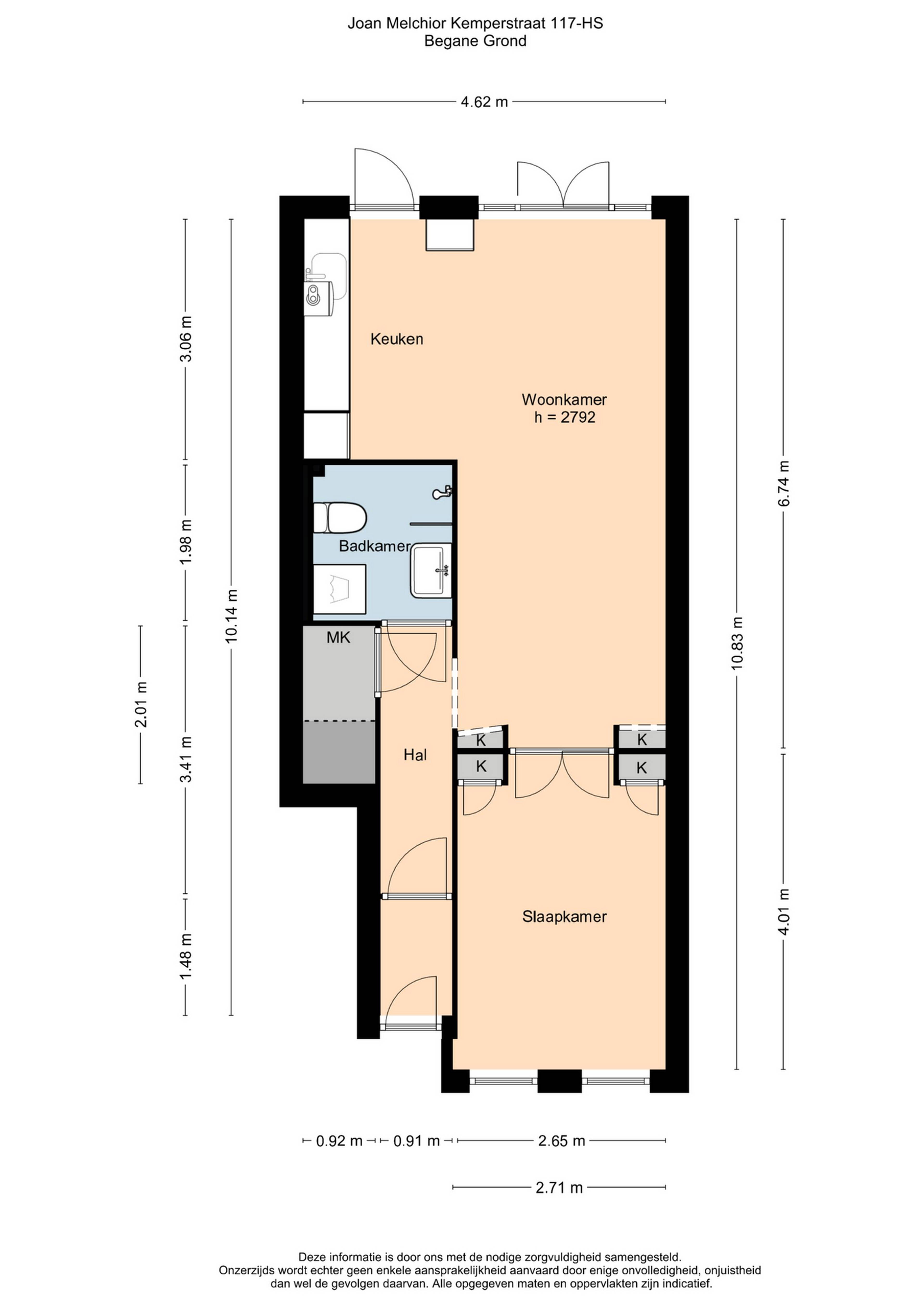
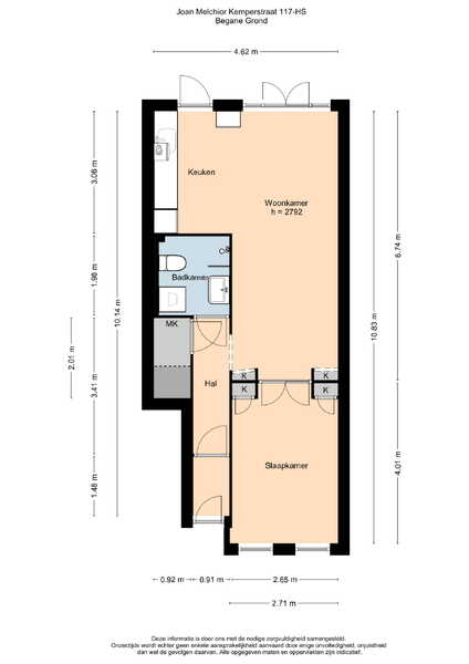
Indeling
Je betreedt het appartement via de hal. Aan de voorzijde bevindt zich de slaapkamer, licht en rustig gelegen met ramen voorzien van dubbel glas. Aan de andere zijde van de hal vind je een praktische bergruimte. Aan het einde van de hal bevindt zich de badkamer, compleet met wastafel, royale douche, toilet en een wasmachine.
Vanuit de hal kom je in de woonkamer. Deze lichte en ruime ruimte beschikt over een open keuken en een gezellige eethoek. De keuken is volledig uitgerust met inbouwapparatuur, waaronder een vaatwasser, combi-oven magnetron en een kookplaat op gas, waardoor de keuken perfect is voor een uitgebreid diner. De dubbele deuren geven toegang tot de achtertuin, die kan worden gezien als een verlengstuk van de woonkamer. De tuin is ideaal om te ontsnappen aan de drukte van de stad.
De woning heeft hier en daar wat aandacht nodig.
Denk aan het moderniseren van de badkamer en keuken. Verder is er natuurlijk de mogelijkheid tot uitbouwen. Kortom: een huis met karakter en kansen om het volledig naar eigen smaak aan te passen.
Omgeving
De Joan Melchior Kemperstraat ligt op loopafstand van het Westerpark en de Jordaan, met de Haarlemmerdijk voor een divers aanbod aan winkels. De Staatsliedenbuurt is een van de meest gewilde en sfeervolle buurten van Amsterdam, met gezellige cafés, restaurants en boutique winkels om de hoek. Voor een hapje of drankje kun je onder andere terecht bij Pendergast, Chez Nina en Café Restaurant Amsterdam. Verder zijn er de vele opties in het Westerpark, zoals Pacific, Brouwerij Troost en de Bakkerswinkel.
De dagelijkse boodschappen zijn eenvoudig te doen bij diverse supermarkten zoals Albert Heijn en Dirk van den Broek, of bij lokale slagers, bakkers en groentewinkels. Het Westerpark biedt daarnaast volop ruimte voor ontspanning en recreatie.
De locatie is uitstekend bereikbaar met zowel het openbaar vervoer als de fiets. Binnen enkele minuten sta je in het centrum, op station Amsterdam Centraal of op station Sloterdijk.
Eigendomsituatie
De erfpacht is door de verkoper eeuwigdurend afgekocht, wat absolute gemoedsrust biedt!
Bijzonderheden
•Circa 45 m² woonoppervlak
• Erfpacht eeuwigdurend afgekocht.
•Woonkamer met openslaande deuren naar de tuin
•Ruime tuin met berging
•Mogelijkheid tot uitbouw (mits toestemming vve, buren reeds gerealiseerd)
•Actieve en gezonde VvE
•Servicekosten €70,83 per maand
•Energielabel C
•Nabij Westerpark, Jordaan, diverse winkels en horeca
•Goed bereikbaar met OV en fiets
•Achtertuin op het zuiden van circa 58 m²
•Oplevering in overleg
Deze woning wordt aangeboden conform artikel 7:17 lid 6 van het Burgerlijk Wetboek.
De opgegeven kenmerken en informatie zijn met de nodige zorgvuldigheid
samengesteld. Er wordt echter geen aansprakelijkheid aanvaard voor eventuele
onvolledigheden, onjuistheden of de gevolgen daarvan. Alle opgegeven maten en
oppervlakten zijn indicatief. De genoemde kenmerken dienen uitsluitend ter aanduiding.
De NEN2580-clausule en ouderdomsclausule zijn van toepassing op deze woning.
Viewings can be scheduled directly via the website of De Makelaars van Amsterdam
Joan Melchior Kemperstraat 117H, Amsterdam
Charming ground-floor apartment with garden in the popular Staatsliedenbuurt
Welcome to Joan Melchior Kemperstraat 117H. A bright and well-laid-out ground-floor apartment of approximately 45 m², with a pleasant south-facing backyard. Having a garden offers plenty of opportunities for expansion. The property is part of an active and healthy homeowners’ association (VvE).
Layout
You enter the apartment through the hallway. At the front of the apartment is the bedroom, bright and quietly located, with windows fitted with double glazing. On the other side of the hallway is a practical storage room. At the end of the hall, you will find the bathroom, complete with a sink, spacious shower, toilet, and a washing machine.
From the hallway, you enter the living room. This bright and spacious area features an open kitchen and a cozy dining corner. The kitchen is fully equipped with built-in appliances, including a dishwasher, combination oven/microwave, and gas hob, making it perfect for preparing a full meal. The double doors provide access to the backyard, which can be seen as an extension of the living area. The garden is ideal for escaping the hustle and bustle of the city.
The property requires some attention.
Consider modernizing the bathroom and kitchen. Additionally, there is, of course, the possibility of expansion. In short: a home with character and opportunities to fully personalize to your own taste.
Neighborhood
Joan Melchior Kemperstraat is within walking distance of Westerpark and the Jordaan, with Haarlemmerdijk offering a wide variety of shops. The Staatsliedenbuurt is one of the most desirable and atmospheric neighborhoods in Amsterdam, with cozy cafés, restaurants, and boutique stores just around the corner. For a bite or a drink, you can head to places like Pendergast, Chez Nina and Café Restaurant Amsterdam. There are also plenty of options in the Westerpark area, such as Pacific, Brouwerij Troost, and De Bakkerswinkel.
Daily groceries can be purchased at various supermarkets such as Albert Heijn and Dirk van den Broek, or at local butchers, bakeries, and greengrocers. Westerpark also offers plenty of space for relaxation and recreation.
The location is excellently accessible by both public transport and bicycle. Within minutes, you can reach the city center, Amsterdam Central Station, or Sloterdijk Station.
Ownership Situation
The ground lease has been bought out indefinitely by the seller, providing absolute peace of mind!
Particulars
•Approximately 45 m² of living space
• Ground lease bought out indefinitely.
•Living room with double doors to the garden
•Spacious garden with storage shed
•Potential for expansion (with permission from the vve, neighbors already completed)
•Active and healthy homeowners’ association (VvE)
•Service costs €70.83 per month
•Energy label C
•Close to Westerpark, Jordaan, various shops, and restaurants
•Well connected by public transport and bicycle
•South-facing backyard of approximately 58 m²
•Delivery in consultation
This property is offered in accordance with Article 7:17 paragraph 6 of the Dutch Civil Code.
The stated features and information have been compiled with due care. However, no liability is accepted for any incompleteness, inaccuracies, or the consequences thereof. All stated measurements and surface areas are indicative. The features mentioned are intended solely for reference. The NEN2580 clause and age-clause apply to this property.