**English text below**
** bezichtigingen direct in te plannen via de website van De makelaars van Amsterdam
Distelweg 299, Amsterdam
Ontdek dit topappartement aan de Distelweg 299, waar elke zonnestraal vanaf 11 uur 's ochtends tot laat in de avond het balkon verwarmt, een zeldzaamheid in Amsterdam. De geïntegreerde keuken vormt het hart van de woning, terwijl de plafondhoge inbouwkasten op ingenieuze wijze een zee van ruimte bieden. In dit slim ontworpen appartement is elke vierkante meter optimaal benut, wat bijdraagt aan een gevoel van ruimtelijke vrijheid. Het is een thuis waar innovatie en functionaliteit samenkomen, van het dak met regenton functie tot het groene balkon die deel uitmaakt van een bekroond duurzaamheidsinitiatief. In een nabijgelegen parkeergarage is een eigen parkeerplaats te koop. Altijd verzekerd van een vaste parkeerplek. Laat je inspireren door een woning die niet alleen lief is voor het milieu, maar ook voor jouw toekomst!
In Noordelijke IJ-oevers West vind je jouw nieuwe thuisbasis; een gebied dat pioniert met circulaire woonconcepten en zich ontwikkelt tot een van de meest vooruitstrevende wijken van Amsterdam. De rustige ligging met uitstekende bereikbaarheid, inclusief een eigen parkeerplek, maakt dit een unieke vondst. Met het Centraal Station op slechts tien minuten fietsen, de nabijgelegen pont naar Pontsteiger en de bruisende NDSM-werf om de hoek, bevindt dit appartement zich in een dynamisch gebied dat nog volop in ontwikkeling is. Voel je verbonden met het stadsleven en tegelijkertijd omarmd door de vernieuwende, groene omgeving van Buiksloterham.
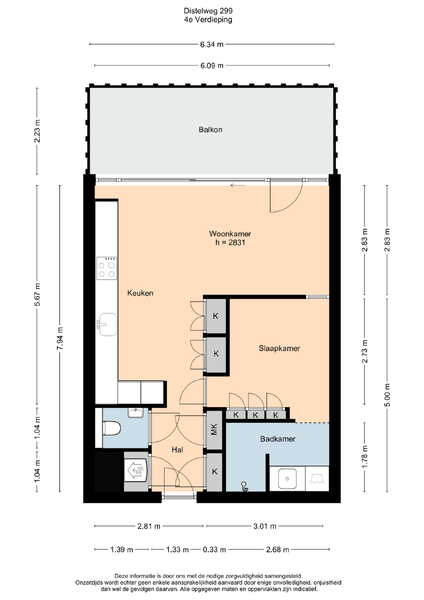
Appartement
Het complex is via een centrale entree te betreden van waaruit je middels een vaste trap of lift toegang krijgt tot de verdieping van het appartement. Verder kom je binnen in een hal, welke naar een toilet en keuken leidt.
In deze keuken vind je een uitgekiende mix van donkere en houten kasten met houten accenten en een strak, licht werkblad, uitgerust met een inbouw koel-/vriescombinatie, inductiekookplaat met afzuiging en een inbouw oven (AEG). De naadloze overgang naar de woonkamer met zijn uitgestrekte raampartijen biedt een canvas voor je interieurideeën, uitmondend in een intiem balkon. Je hebt in de woonkamer zeker genoeg ruimte voor het realiseren van een gezellige zit- en eethoek.
De slaapkamer, een serene terugtrekplek, biedt directe toegang tot een stijlvolle badkamer waarin functionaliteit en design hand in hand gaan. Deze badkamer beschikt namelijk over een wastafelmeubel, wasmachine en inloopdouche. Tevens is de badkamer afgewerkt met donkere vloer- en wandtegels.
Buitenruimte
Het dakterras, een verlengstuk van je woonkamer, nodigt uit tot zonnebaden, yogasessies bij zonsopgang of intieme etentjes onder de sterren, dankzij de sfeervolle houten vlonders en beschutting.
Eigen parkeerplaats te koop
Parkeerplaats in nabijgelegen parkeergarage te koop voor € 38.000,- k.k. VvE-bijdrage € 42,70 per maand. Erfpacht afgekocht tot en met 15 februari 2070.
Bijzonderheden
-Modern afgewerkt appartement
-Een parkeergarage met eigen parkeerplaats (€ 38.000,- k.k.)
-Volledig geïsoleerd (Energielabel A++)
-Slimme indeling met optimaal gebruik van ruimte
-Stadsverwarming
-Inbouwkasten met binnenverlichting
-Bekroond dak met groene "regenton" functie
-Erfpacht, canon afgekocht tot 2070
-Gezonde en actieve VVE;
VvE bijdrage van € 229,- per maand (appartement);
VvE bijdrage van €42,70 per maand (parkeren);
-Verzonken stroompunten en doorgeluste wifi-kabels
- Zonnepanelen op het dak
-Oplevering: in overleg (kan snel)
Distelweg 299 staat voor een huis dat klaar is voor een duurzame toekomst, met een knipoog naar comfort en klasse. Een plek waar elk detail telt en waar jij het middelpunt bent van innovatief en milieubewust wonen.
English text below
Viewings can be scheduled directly through the website of De makelaars van Amsterdam
Discover this top apartment at Distelweg 299, where every sunbeam warms the balcony from 11 am until late in the evening—a rarity in Amsterdam. The integrated kitchen serves as the heart of the home, while floor-to-ceiling built-in cabinets ingeniously provide ample space. In this cleverly designed apartment, every square meter is optimally utilized, contributing to a sense of spatial freedom. It's a home where innovation and functionality converge, from the roof with a rain barrel function to the green balcony that is part of an award-winning sustainability initiative. A private parking space is for sale in a nearby parking garage. Be inspired by a home that is not only kind to the environment but also to your future!
In the Northern IJ-oevers West, you'll find your new home base—a area pioneering with circular living concepts, evolving into one of Amsterdam's most progressive neighborhoods. The quiet location with excellent accessibility, including a private parking spot, makes this a unique find. With Central Station just a ten-minute bike ride away, the nearby ferry to Pontsteiger, and the vibrant NDSM wharf around the corner, this apartment is in a dynamic area still undergoing development. Feel connected to city life while embraced by the innovative, green surroundings of Buiksloterham.
Apartment:
You can enter the complex through a central entrance, from where a fixed staircase or elevator provides access to the apartment's floor. Upon entry, you find yourself in a hallway leading to a toilet and kitchen.
In this kitchen, you'll discover a thoughtful blend of dark and wooden cabinets with wooden accents and a sleek, light countertop, equipped with a built-in fridge/freezer, induction hob with ventilation, and a built-in oven (AEG). The seamless transition to the living room with its expansive windows serves as a canvas for your interior ideas, leading to an intimate balcony. In the living room, you have ample space to create a cozy seating and dining area.
The bedroom, a serene retreat, offers direct access to a stylish bathroom where functionality and design go hand in hand. This bathroom features a vanity unit, washing machine, and walk-in shower. The bathroom is also finished with dark floor and wall tiles.
Outdoor Space:
The rooftop terrace, an extension of your living room, invites sunbathing, yoga sessions at sunrise, or intimate dinners under the stars, thanks to the atmospheric wooden decking and shelter.
Private parking space for sale
Parking space in a nearby parking garage for sale at € 38,000 costs buyer. Monthly VvE (HOA) contribution € 42.70. Ground lease prepaid until 15 February 2070.
Special Features:
•Modern finished apartment
•Parking garage with private parking (€ 38,000 costs buyer)
•Fully insulated (Energy label A++)
•Smart layout with optimal use of space
•City-heating
•Built-in cabinets with interior lighting
•Award-winning roof with green "rain barrel" function
•Leasehold, payed off until 15-02-2070
•Healthy and active VVE (Homeowners Association)
VVE contribution of €229 per month (apartment)
VVE contribution of €42,70 per month (parking)
•Recessed power points and looped Wi-Fi cables
• Solar panels on the roof
•Delivery: in consultation (can be quick)
Distelweg 299 represents a home ready for a sustainable future, with a nod to comfort and class. A place where every detail matters, and where you are the center of innovative and environmentally conscious living.