Schitterende en ruime eengezinswoning (ca. 112m2) met 4 slaapkamers in een modern en goed onderhouden appartementencomplex. De woning, energielabel A en voorzien van vloerverwarming, heeft een voortuin, achtertuin, aparte berging en een parkeerplaats in de afgesloten garage.
LOCATIE:
Het appartementencomplex (''Downtown'') aan de Jacques Veltmanstraat is gerealiseerd in 2003 en kenmerkt zich door de fraaie architectuur. Het pand is rustig en optimaal gelegen, net buiten de ringweg A10 maar op slechts enkele minuten van het bruisende centrum van Amsterdam en de aangrenzende winkelgebieden (Hoofddorp-, Osdorp- en Sierplein). Voor recreatie zijn er verschillende parken en meren in de omgeving: de Sloterplas, het Rembrandt- en het Vondelpark.
Zeer gunstig gelegen ten opzichte van het openbaar vervoer, vanaf Station Lelylaan gaat de trein rechtstreeks naar Schiphol (1 halte - 7 minuten) en Amsterdam CS, de metro richting Sloterdijk en Station Zuid, via de diverse opties (tram of bus) ben je binnen 15 minuten in het centrum. Uitvalswegen (S106 en S107) vanaf de Westelijke Randweg A10 en Schiphol zijn met de auto binnen 15 minuten te bereiken.
INDELING:
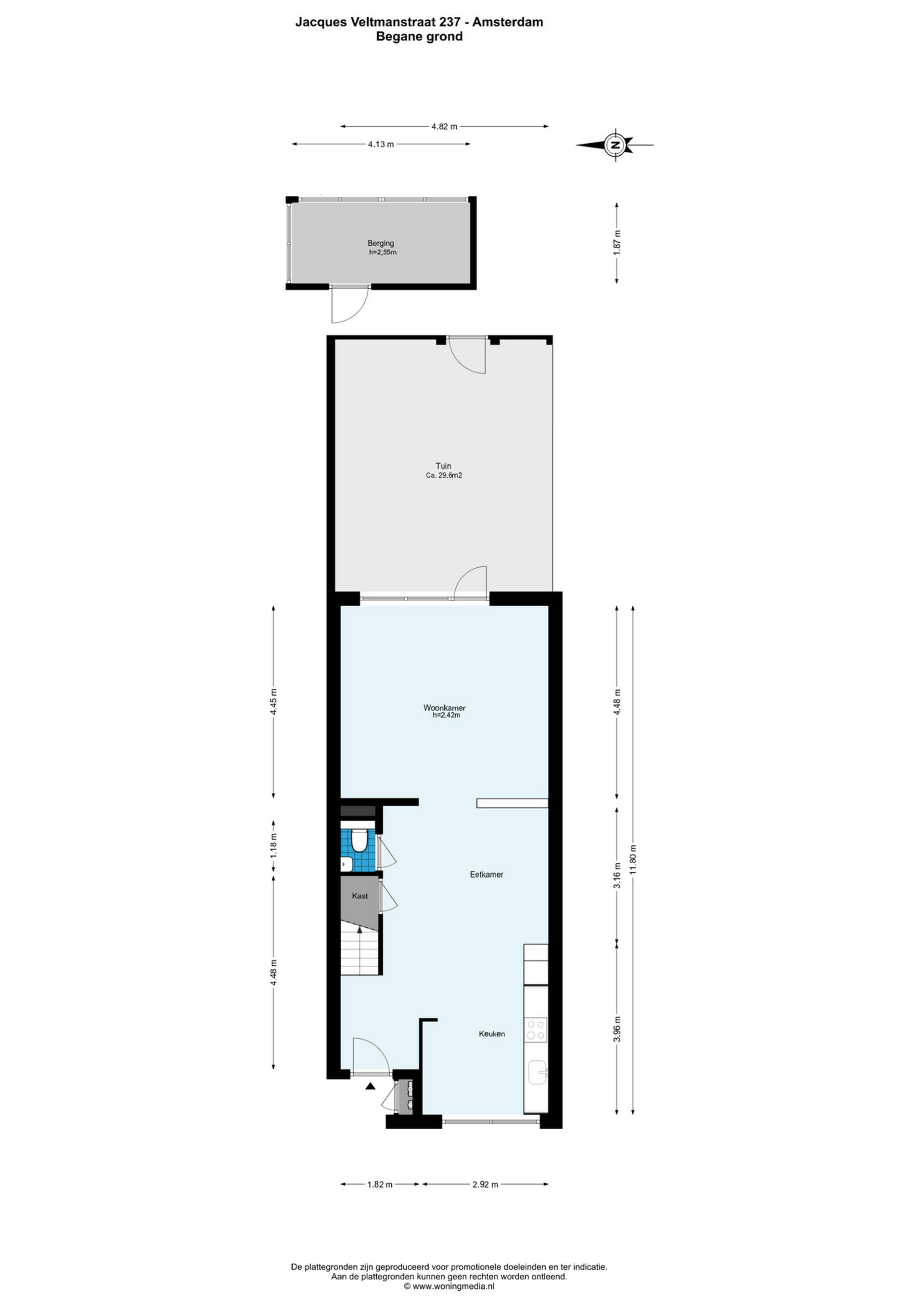
Via de voortuin stap je de woning binnen. De benedenverdieping is een heerlijke open ruimte met aan de voorzijde de keuken. De keuken is voorzien van allerhande inbouwapparatuur. Naast de keuken ligt een gezellig eethoek. De ruime woonkamer bevindt zich aan de achterzijde van het huis. Door de grote ramen en de deur naar de achtertuin heb je een mooie hoeveelheid licht. Beneden bevindt zich verder nog een aparte wc en ruime trapkast.
De achtertuin leidt, via een poort, naar een achtergelegen pad vanwaar toegang naar de berging en de openbare weg.
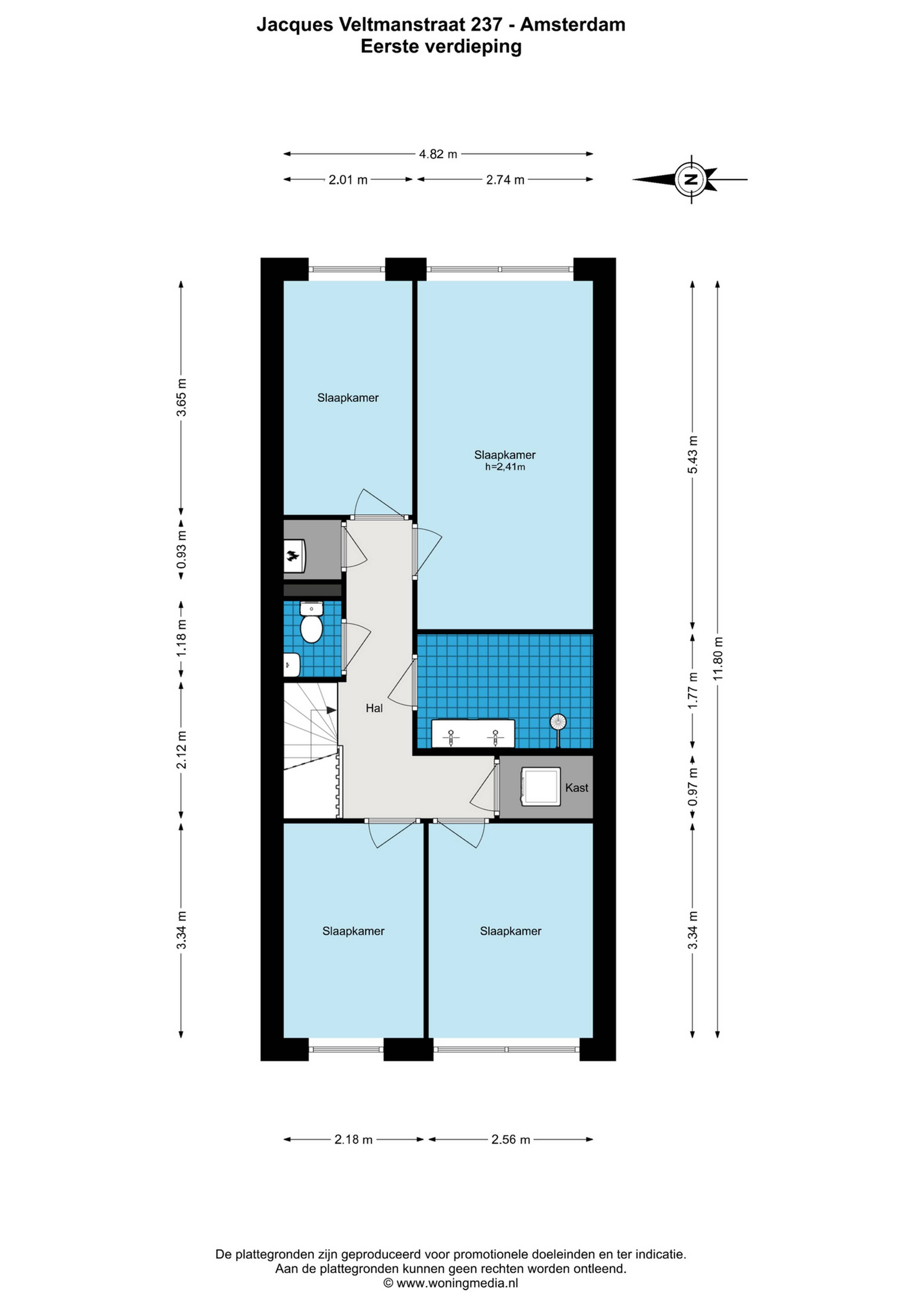
De trap leidt naar de tweede verdieping. Hier vind je in totaal 4 slaapkamers en de badkamer. Alle slaapkamers hebben uitzicht op de voor- of achtertuin. De badkamer heeft een riante inloop douche en dubbel wastafelmeubel. Verder nog een apart toilet, vaste kasten met CV en kast met wasmachine/droger opstelling.
Kortom, een ruime gezinswoning.
VERENIGING VAN EIGENAREN:
De VvE genaamd ''Vereniging Van Eigenaars Downtown'' is een actieve en gezonde vereniging, waarbij het beheer wordt gedaan door een professionele beheerder. De huidige contributie (servicekosten) is ca. € 258,- per maand.(incl. parkeerplek)
EIGENDOMSSITUATIE:
Dit pand is gelegen op gemeentelijke erfpachtgrond. De erfpacht is afgekocht tot 15 maart 2052. De Algemene Bepalingen 1994 zijn van toepassing.
De overgang naar eeuwigdurende erfpacht is pas in 2024 aangevraagd.
PARKEREN:
Privé parkeren in afgesloten parkeergarage!
Bijzonderheden:
- Dubbel benedenhuis van 112m2
- Vier slaapkamers en een badkamer
- Twee aparte toiletten
- Voortuin, achtertuin en berging
- Eigen parkeerplaats in de overdekte en beveiligde parkeerkelder
- Geheel voorzien van HR++ ramen en vloerverwarming
- Energielabel A
- Servicekosten voor de woning en parkeerplaats bedragen € 268,- per maand
- Uitstekende VvE
- Oplevering in overleg
Voor het maken van een afspraak kijkt u op onze bedrijfspagina voor een online kalender of neemt u contact op per mail of telefonisch.