LICHT, LUXE EN EEN UITZICHT OM VAN TE DROMEN – DIT IS WONEN AAN DE AMSTEL
Droom jij van een stijlvolle woning in Amsterdam mét uitzicht op het water? Dit volledig gerenoveerde appartement van 59 m² op de tweede verdieping combineert luxe afwerking met een fenomenaal uitzicht op de iconische Berlagebrug. Ideaal voor werkende stellen of singles die op zoek zijn naar een lichte, comfortabele woning op een toplocatie in de stad.
MODERN EN SFEERVOL WONEN IN DE RIVIERENBUURT
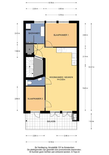
Zodra je het appartement binnenstapt, voel je de rust en ruimte. De open hal leidt je naar een lichte en strak afgewerkte woonkamer, waar grote raampartijen en dubbele openslaande deuren zorgen voor een zee aan daglicht. De moderne open keuken is slim ingedeeld in een L-opstelling, uitgevoerd met witte kasten, een stijlvol stenen werkblad en voorzien van alle inbouwapparatuur die je je kunt wensen – van een combi-oven tot een inductiekookplaat en vaatwasser.
Wat dit appartement echt uniek maakt? Het balkon. Maar liefst twee meter diep en over de volle breedte van de woning, met uitzicht op een rustige binnentuin én de zon tot in de late avonduren. Met een oppervlakte van 12 m² is er meer dan genoeg plek voor een eettafel, loungebank of een urban jungle van planten. Hier geniet je met een glas wijn of kop koffie van het mooiste licht dat Amsterdam te bieden heeft.
De twee slaapkamers liggen aan weerszijden van de woning: eentje met zicht op de Amstel – ontwaken met uitzicht op het kabbelende water – en eentje aan de achterzijde, grenzend aan het balkon. Perfect in te richten als slaap-, werk- of logeerkamer. De badkamer is strak, fris en praktisch: volledig betegeld, met een dubbele wastafel, spiegel met verlichting en een royale inloopdouche met regendouche én handdouche.
Alles in deze woning ademt comfort en kwaliteit. Denk aan spotverlichting in het plafond, hoge plinten, een moderne laminaatvloer en strakke wanden. Het hele appartement is in 2021 grondig gerenoveerd én voorzien van energielabel A – dus duurzaam én toekomstbestendig.
De locatie is al even aantrekkelijk: de gezellige Rivierenbuurt aan je voeten, met het Amstelstation op loopafstand en hotspots als De Pijp, Park Frankendael en Oud-Zuid om de hoek. Of je nu op de fiets stapt, met de metro reist of met de auto de stad uit moet – de bereikbaarheid is uitstekend. Binnen enkele minuten zit je op de A10.
BIJZONDERHEDEN
- 3-kamerappartement
- Woonoppervlakte: 59 m²
- Energielabel: A
- Groot balkon op het westen (12 m²) met avondzon
- Volledig gerenoveerd in 2021
- Tweede verdieping
- Vrij uitzicht op de Amstel en de Berlagebrug
HUURVOORWAARDEN
- Huurprijs: € 2.600,- per maand (exclusief gas, water, elektra)
- Vaste servicekosten: € 27,50 per maand (CV-onderhoud)
- Waarborgsom: twee maanden kale huur (zonder servicekosten)
- Inkomenseis: minimaal 2,5 keer de maandhuur (netto)
- Huurpunten: 198 – vrije sector
- Beschikbaar per 1 maart 2026
JOUW NIEUWE THUIS WACHT AAN DE AMSTEL
Zie jij jezelf hier al wonen? Genietend van lange zomeravonden op je balkon, met het uitzicht dat nooit verveelt en de stad aan je voeten? Wacht dan niet te lang. Neem snel contact op voor een bezichtiging, want woningen als deze zijn zeldzaam – en gewild.
LIGHT, LUXURY AND A VIEW TO DREAM OF – THIS IS LIVING ON THE AMSTEL
Do you dream of a stylish home in Amsterdam with water views? This fully renovated 59 m² apartment on the second floor combines luxury finishes with a phenomenal view of the iconic Berlage Bridge. Ideal for working couples or singles looking for a bright, comfortable home in a prime city location.
MODERN AND ATMOSPHERIC LIVING IN RIVIERENBUURT
As soon as you enter the apartment, you feel the peace and space. The open hallway leads you to a bright and sleekly finished living room, where large windows and double French doors provide an abundance of daylight. The modern open kitchen is cleverly arranged in an L-shape, finished with white cabinets, a stylish stone worktop and equipped with all the built-in appliances you could wish for, from a combination oven to an induction hob and dishwasher.
What makes this apartment truly unique? The balcony. No less than two metres deep and spanning the full width of the property, overlooking a quiet courtyard garden and catching the sun until late in the evening. With a surface area of 12 m², there is more than enough space for a dining table, lounge sofa or an urban jungle of plants. Here you can enjoy a glass of wine or cup of coffee in the most beautiful light Amsterdam has to offer.
The two bedrooms are located on either side of the property: one overlooking the Amstel, waking up to views of the rippling water, and one at the rear, adjacent to the balcony. Perfect for use as a bedroom, home office or guest room. The bathroom is sleek, fresh and practical: fully tiled, with a double sink, illuminated mirror and a spacious walk-in shower with both rain shower and hand shower.
Everything in this home exudes comfort and quality. Think spotlight ceiling lighting, high skirting boards, modern laminate flooring and smooth walls. The entire apartment was thoroughly renovated in 2021 and has energy label A, making it sustainable and future-proof.
The location is equally attractive: the pleasant Rivierenbuurt on your doorstep, with Amstel Station within walking distance and hotspots such as De Pijp, Park Frankendael and Oud-Zuid just around the corner. Whether you cycle, travel by metro or need to drive out of the city, accessibility is excellent. You can reach the A10 motorway within minutes.
PARTICULARS:
- 3-room apartment
- Living area: 59 m²
- Energy label: A
- Large west-facing balcony (12 m²) with evening sun
- Fully renovated in 2021
- Second floor
- Unobstructed views of the Amstel and Berlage Bridge
RENTAL CONDITIONS
- Rental price: €2,600 per month (excluding gas, water, electricity)
- Fixed service costs: €27.50 per month (central heating maintenance)
- Deposit: two months' basic rent (excluding service costs)
- Income requirement: minimum 2.5 times the monthly rent (net)
- Rental points: 198, private sector
- Available from 1 March 2026
YOUR NEW HOME AWAITS ON THE AMSTEL
Can you see yourself living here? Enjoying long summer evenings on your balcony, with views that never bore and the city at your feet? Then don't wait too long. Get in touch quickly to arrange a viewing, because homes like this are rare and sought after.