Algemeen
Omschrijving
(English below)
Modern wonen met karakter in hartje Amsterdam
Dit schitterend afgewerkte tweekamerappartement biedt de perfecte mix van moderne luxe en Amsterdamse charme. Met veel lichtinval, hoge plafonds en een zonnig diepe balkon, is dit de ideale plek om te genieten van het stadsleven. Het appartement beschikt over een royale woonkamer met open keuken, een knusse slaapkamer met luxe badkamer en-suite, en is gelegen in een van de meest bruisende wijken van de stad. Je woont hier op een toplocatie, met alles wat Amsterdam te bieden heeft binnen handbereik.
De ligging aan de gewilde Overtoom, op loopafstand van het Vondelpark, geeft toegang tot tal van winkels, cafés en restaurants. Voor de dagelijkse boodschappen of een culinaire avond hoef je niet ver te zoeken. Of je nu de stad verder wilt ontdekken op de fiets of gebruik wilt maken van het uitstekende openbaar vervoer, met tramlijnen 1 en 17 praktisch voor de deur ben je altijd snel op weg. De nabijheid van de A10 zorgt daarnaast voor een vlotte ontsluiting richting de rest van Nederland.
Begane grond
Via de gemeenschappelijke portiek betreed je de trapopgang die je naar de voordeur op de eerste verdieping leidt.
Eerste verdieping
Indeling
Bij binnenkomst word je meteen verrast door de prachtige eikenhouten vloer die door het gehele appartement ligt. De ruime bergkast in de hal biedt niet alleen plaats aan je wasmachine en droger, maar ook aan de meterkast. Vanuit de hal loop je door naar de lichte en royale woonkamer. Hoge plafonds met sierlijsten en plafondhoge ramen zorgen voor een prachtige lichtinval. Via de balkondeur stap je eenvoudig naar buiten om even te genieten van de frisse lucht. De woonkamer vormt samen met de keuken en eetkamer een prachtige open leefruimte. De twee authentieke schouwen in de woonkamer en eetkamer, gecombineerd met de moderne open keuken, zorgt voor een speelse balans tussen klassiek en eigentijds.
De keuken is strak afgewerkt en van alle gemakken voorzien, inclusief een gas-op-glaskookplaat, een retro afzuigkap, combi-oven, koel-/vriescombinatie en een vaatwasser. Het betonlook composiet werkblad geeft de keuken een stoere, industriële uitstraling. Vanuit de keuken loop je door naar de eetkamer, die dankzij de plafondhoge raampartijen een zee van licht binnenlaat. De balkondeuren openen naar het balkon, waardoor de buitenruimte op een natuurlijke manier betrokken wordt bij het interieur.
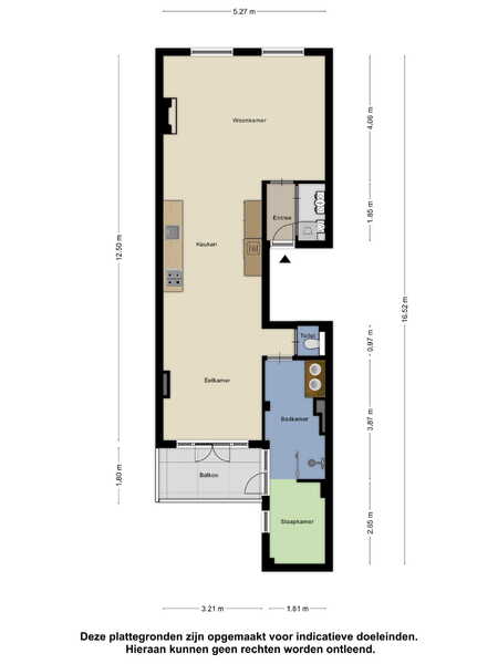
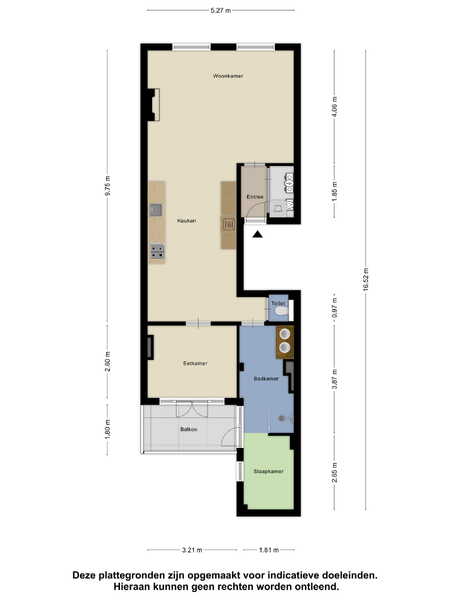
De eetkamer biedt directe toegang tot het moderne toilet en de luxe badkamer. Indien gewenst, kan de eetkamer eenvoudig worden omgebouwd tot een tweede slaapkamer, zoals geïllustreerd op de plattegronden bij de foto's.
De knusse slaapkamer is voorzien van een groot raam en een deur naar het balkon, waardoor de ruimte fris en licht aanvoelt. Deze slaapkamer is direct verbonden met de luxe badkamer en-suite. Hier tref je een moderne afwerking met een ruime inloop regendouche, een wastafelmeubel met dubbele waskommen en geïntegreerde kranen, en een designradiator.
Buitenruimte
Het overdekte balkon biedt een heerlijke plek om te ontspannen met een kop koffie, en er is een ruime berging met een groot raam, ideaal voor extra opslag of hobbyruimte.
Bijzonderheden
- Prachtig, modern afgewerkt tweekamerappartement
- Woonoppervlak: 76 m² (Woonoppervlakte 1ste verdieping 67m2 en 4de verdieping 9m2 Studiekamer/berging)
- 1 slaapkamer, mogelijkheid tot 2 slaapkamers
- Bouwjaar: 1899
- Volledig gemeubileerd
- Houten vloer
- Open indeling voor een royale leefruimte
- Hoge plafonds met sierlijsten
- Plafondhoge raampartijen
- Aparte douche en toilet
- Overdekt diepe balkon op het noordwesten
- Ruime berging met raampartij
- Goede openbaar vervoer verbindingen
- Parkeren: wachtlijst voor parkeervergunning (na te vragen bij de gemeente)
- Gelegen op de 1e verdieping
- Erfpacht afgekocht tot 2062, daarna eeuwigdurend vastgeklikt
- VvE bijdrage: €183 per maand
- Dit appartement biedt de perfecte balans tussen modern comfort en het bruisende stadsleven van Amsterdam. - Wonen in stijl met alles binnen handbereik – jouw nieuwe thuis wacht op je!
--------------------------------------------------------------------------------------------------------------------------------------------------------------------------
Modern living with character in the heart of Amsterdam
This beautifully finished one-bedroom apartment offers the perfect blend of modern luxury and Amsterdam charm. With plenty of natural light, high ceilings, and a large sunny balcony, this is the ideal spot to enjoy city living. The apartment features a spacious living room with an open kitchen, a cozy bedroom with an en-suite luxury bathroom, and is situated in one of the city’s most vibrant neighborhoods. You’ll live in a prime location with everything Amsterdam has to offer within reach.
Located on the desirable Overtoom, just a short walk from Vondelpark, you have access to countless shops, cafés, and restaurants. Whether you’re heading out for groceries or planning a night out, everything is close by. Whether you explore the city by bike or use the excellent public transport, with tram lines 1 and 17 practically at your doorstep, you’re always on your way in no time. The proximity to the A10 ring road also makes it easy to travel outside the city.
Ground floor
Through the communal entrance, you enter the staircase leading to the private front door on the first floor.
First floor
Layout
Upon entering, you are immediately greeted by the beautiful oak wooden floor that runs throughout the apartment. The spacious storage closet in the hall provides space for your washing machine and dryer, as well as the meter cupboard. From the hall, you walk into the bright and spacious living room. High ceilings with decorative moldings and floor-to-ceiling windows allow plenty of natural light to flood the space. The balcony door leads you outside, where you can enjoy a breath of fresh air. The living room, kitchen, and dining room are part of an open floor plan that creates a generous living area. The authentic two fireplace in the living room, paired with the modern open kitchen, strikes a perfect balance between classic and contemporary.
The kitchen is sleekly designed and fully equipped, including a gas-on-glass cooktop, retro extractor hood, combi-oven, fridge/freezer, and dishwasher. The concrete-look composite countertop adds a tough, industrial feel to the kitchen. From the kitchen, you step into the dining room, which is bathed in natural light from the floor-to-ceiling windows. The balcony doors extend the indoor living space into the outdoors.
The dining room provides direct access to the modern toilet and the luxurious bathroom. If desired, the dining room can easily be converted into a second bedroom, as illustrated in the floor plans provided with the photos.
The cozy bedroom features a large window and a door to the balcony, giving the space a fresh and light atmosphere. This bedroom is directly connected to the en-suite bathroom. Here, you’ll find modern finishes, including a spacious walk-in rain shower, a vanity with dual sinks and integrated faucets, and a designer radiator.
Outdoor space
The covered balcony provides a relaxing spot to enjoy a cup of coffee, and there is a large storage room with a window, perfect for extra storage or hobby space.
Details
- Beautifully finished one-bedroom apartment
- Living area: 76 m² (LA 1st floor 67m2 + 4th floor 9m2 study room or storage)
- 1 bedroom, possibility of 2 bedrooms
- Construction year: 1899
- Fully furnished
- Wooden flooring
- Open floor plan for a spacious living area
- High ceilings with decorative moldings
- Floor-to-ceiling windows
- Separate shower and toilet
- Covered large balcony facing northwest
- Large storage room with window
- Excellent public transport connections
- Parking: waiting list for a parking permit (check with the municipality)
- Located on the 1st floor
- Leasehold paid off until 2062, perpetual payments per year thereafter
- VVE contribution: €183,- per month
- This apartment offers the perfect balance of modern comfort and vibrant Amsterdam city life. Live in style with
everything within reach – your new home is waiting for you!
Kenmerken
Adres
1054 JG Amsterdam
Prijs
Details
Indeling
Tuin
Garage
Balkon
Bergruimte
Energielabel
Uw makelaar
Filipe Bataglia
Geïnteresseerd in deze woning? Vul dit formulier in voor een bezichtiging van deze woning of voor meer informatie. Dan nemen wij zo snel mogelijk contact met u op.













