Algemeen
Omschrijving
English below!
Een goed verzorgd appartement aan de Rochussenstraat 3-2 in Amsterdam biedt de perfecte balans tussen comfort, licht en gezelligheid. Met een ruime slaapkamer, een lichte woonkamer, een moderne keuken en badkamer, en niet te vergeten twee fijne balkons, is dit een unieke kans om te wonen in een sfeervol appartement met alles binnen handbereik. Of je nu op zoek bent naar rust of het bruisende stadsleven, dit appartement heeft het allemaal.
Buurt:
Het appartement is gelegen in de populaire Staatsliedenbuurt, een buurt die bekend staat om zijn karakter en talrijke voorzieningen. Binnen enkele minuten ben je bij diverse scholen, sportclubs, supermarkten en winkels. De bereikbaarheid is uitstekend met openbaar vervoer zoals trams en bussen op loopafstand. Voor wie van groen houdt, ligt het Westerpark om de hoek, een perfecte plek voor een ontspannen wandeling. Het centrum van Amsterdam is snel en gemakkelijk te bereiken, waardoor je kunt genieten van zowel rust als levendigheid.
Ingang:
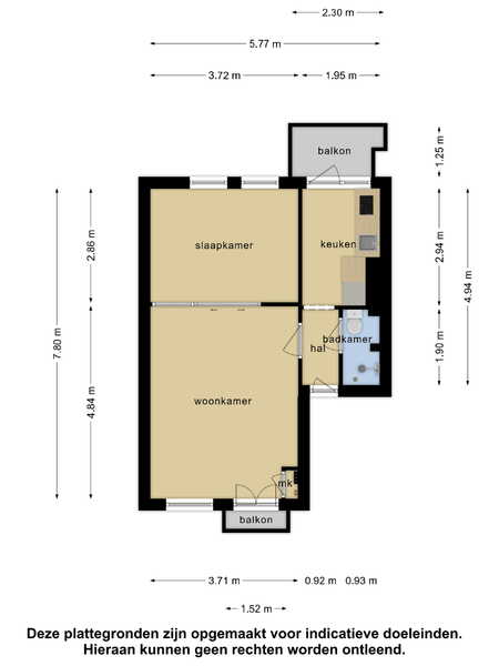
Bij binnenkomst via de gemeenschappelijke entree betreed je het goed onderhouden trappenhuis dat je naar de tweede verdieping leidt, waar dit charmante appartement zich bevindt. De hal vormt het centrale punt van de woning en biedt toegang tot zowel de keuken als de badkamer. Door de praktische indeling voelt het appartement efficiënt en ruim aan.
Woonkamer:
De woonkamer, bereikbaar via de hal, biedt een open indeling met veel natuurlijk licht, wat zorgt voor een ruimtelijk gevoel. Hier is genoeg ruimte voor een comfortabele zithoek en eethoek. Vanuit de woonkamer stap je zo het balkon op dat uitzicht biedt op de levendige straat. Dit is de perfecte plek om even te ontspannen na een lange dag.
Slaapkamer:
De slaapkamer, grenzend aan de woonkamer en gescheiden door stijlvolle schuifdeuren met glas, straalt rust uit. De schuifdeuren laten het licht prachtig doorstromen van de woonkamer naar de slaapkamer. Er is voldoende ruimte voor een groot bed, opbergruimte, en zelfs een werkhoek, waardoor de kamer een ideale plek is voor zowel ontspanning als productiviteit.
Keuken:
De moderne keuken, direct toegankelijk vanuit de hal, is volledig uitgerust met hoogwaardige inbouwapparatuur zoals een gasfornuis, afzuigkap, oven, koelkast, vaatwasser en een praktische spoelbak. De slimme opbergmogelijkheden zorgen ervoor dat je keuken altijd opgeruimd en georganiseerd is. Het balkon aan de achterzijde is via de keuken te bereiken, waardoor het een fijne plek is om buiten te eten of te relaxen.
Badkamer:
De volledig betegelde badkamer, bereikbaar vanuit de hal, is modern en van alle gemakken voorzien. Met een ruime inloopdouche, toilet en een moderne wastafel met spiegel is de badkamer niet alleen functioneel, maar ook stijlvol.
Buitenruimte:
Dit appartement biedt twee balkons, wat een zeldzaamheid is in Amsterdam. Het balkon aan de voorzijde is toegankelijk vanuit de woonkamer en biedt uitzicht op de straat, terwijl het balkon aan de achterzijde, toegankelijk via de keuken, meer privacy en rust biedt. Ideaal voor wie van het buitenleven houdt zonder de stad te verlaten.
Erfpacht:
Deze woning heeft eeuwigdurende erfpacht volgens de Algemene Bepalingen 2016. De canon is tot 15 november 2057 afgekocht. De eigenaar heeft tijdig de overstap naar eeuwigdurende erfpacht aangevraagd, na 2057 is de erfpacht eeuwigdurend vastgeklikt en dit betekend dat u na 2057 jaarlijks een canon betaald die in 2024 € 873,93 bedraagt en jaarlijks wordt geïndexeerd
Bijzonderheden:
- Charmant appartement op de tweede verdieping
- VVE kosten €73,00 per maand
- Ruime, lichte woonkamer met balkon aan de voorzijde
- Slaapkamer met schuifdeuren en voldoende ruimte voor een bed en opbergmeubels
- Moderne, volledig uitgeruste keuken met toegang tot het balkon aan de achterzijde
- Instapklare badkamer met inloopdouche
- Twee balkons: voor- en achterzijde
- Gelegen in de levendige Staatsliedenbuurt
- Uitstekende verbindingen met openbaar vervoer en uitvalswegen
- Energielabel B
**English Translation:**
Introduction:
A well-maintained apartment at Rochussenstraat 3-2 in Amsterdam offers the perfect balance of comfort, light, and coziness. With a spacious bedroom, bright living room, modern kitchen and bathroom, and not to mention two lovely balconies, this is a unique opportunity to live in a charming apartment with everything within reach. Whether you're looking for peace or the vibrant city life, this apartment has it all.
Neighbourhood:
The apartment is located in the popular Staatsliedenbuurt, a neighborhood known for its character and numerous amenities. Within minutes, you'll find various schools, sports clubs, supermarkets, and shops. The area is well-connected with public transport such as trams and buses within walking distance. For nature lovers, Westerpark is just around the corner, perfect for a relaxing stroll. The city center is easily and quickly accessible, allowing you to enjoy both tranquility and city vibrancy.
Entrance:
Upon entering through the shared entrance, you arrive at the well-maintained stairwell that leads you to the second floor, where this charming apartment is located. The hallway forms the central point of the home and provides access to both the kitchen and bathroom. Thanks to the practical layout, the apartment feels efficient and spacious.
Living Room:
The living room, accessible from the hallway, offers an open layout with plenty of natural light, creating a spacious atmosphere. There is ample room for a comfortable sitting area and dining area. From the living room, you step out onto the balcony that overlooks the lively street. It's the perfect spot to unwind after a long day.
Bedroom:
The bedroom, adjacent to the living room and separated by stylish glass sliding doors, exudes tranquility. The sliding doors allow light to flow beautifully from the living room to the bedroom. There is enough space for a large bed, storage, and even a workspace, making the room an ideal spot for both relaxation and productivity.
Kitchen:
The modern kitchen, directly accessible from the hallway, is fully equipped with high-end built-in appliances such as a gas stove, extractor hood, oven, fridge, dishwasher, and a practical sink. The clever storage solutions ensure your kitchen is always tidy and organized. The rear balcony is accessible via the kitchen, making it a great spot for outdoor dining or relaxing.
Bathroom:
The fully tiled bathroom, accessible from the hallway, is modern and fully equipped. With a spacious walk-in shower, toilet, and modern sink with mirror, the bathroom is not only functional but also stylish.
Outdoor Space:
This apartment offers two balconies, which is a rarity in Amsterdam. The front balcony is accessible from the living room and overlooks the street, while the rear balcony, accessible via the kitchen, offers more privacy and tranquility. Ideal for those who enjoy outdoor living without leaving the city.
Groundlease:
This property has perpetual leasehold according to the General Provisions 2016. The lease has been bought off until November 15, 2057. The owner has requested the switch to perpetual leasehold in time, after 2057 the leasehold is fixed in perpetuity and this means that after 2057 you will pay an annual leasehold that will amount to € 873.93 in 2024 and will be indexed annually
Features:
- Charming apartment on the second floor
- VVE costs €73,00 per month
- Spacious, bright living room with a front balcony
- Bedroom with sliding doors and plenty of space for a bed and storage
- Modern, fully equipped kitchen with access to the rear balcony
- Move-in ready bathroom with walk-in shower
- Two balconies: front and rear
- Located in the lively Staatsliedenbuurt
- Excellent connections with public transport and highways
- Energielabel B
Kenmerken
Adres
1051 JK Amsterdam
Prijs
Details
Indeling
Tuin
Garage
Balkon
Bergruimte
Energielabel
Uw makelaar
Filipe Bataglia
Geïnteresseerd in deze woning? Vul dit formulier in voor een bezichtiging van deze woning of voor meer informatie. Dan nemen wij zo snel mogelijk contact met u op.










